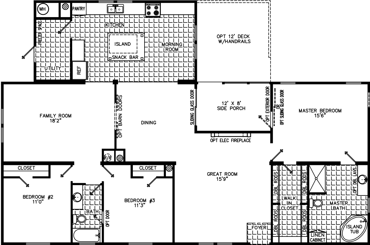
Homes | Tracy 3 Porch 4260