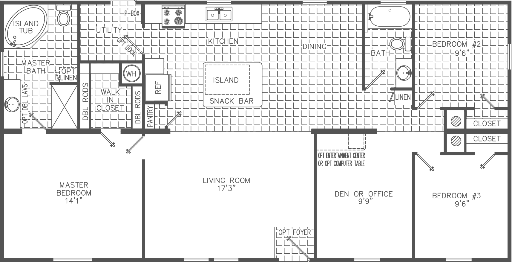
Homes | Peyton 2852 4 BR