Homes | MJ
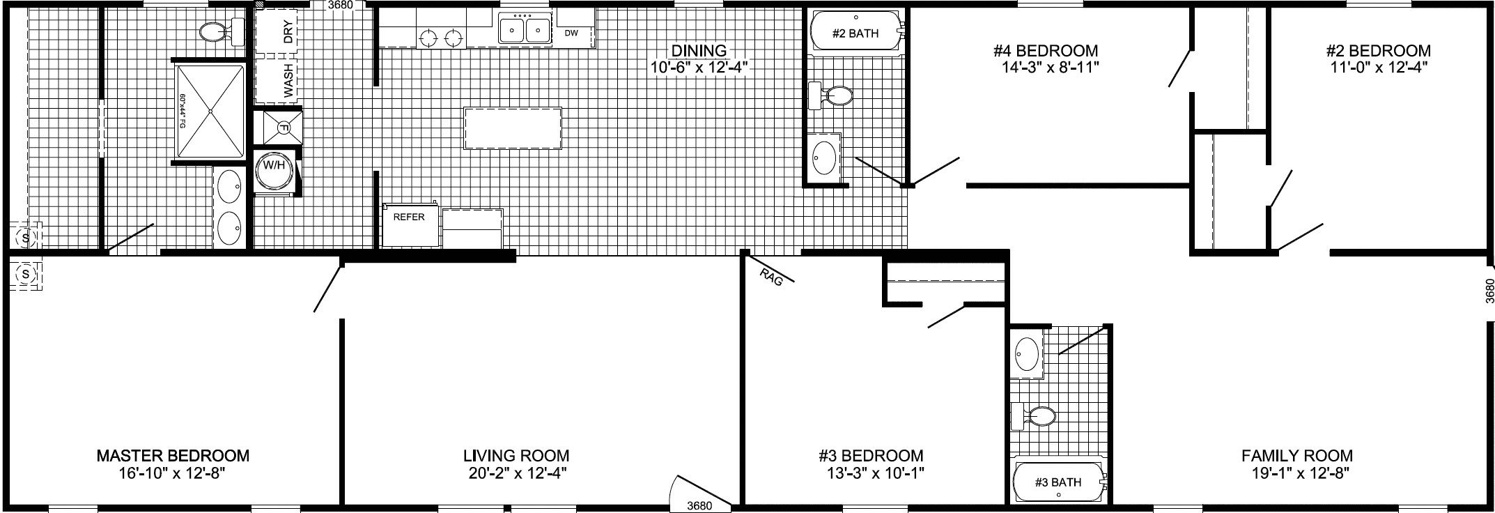
4 bedrooms
3 full bathrooms
1,976 sq. ft.
28' x 80'
Runner SS Series standard features
Kitchen
High-Arch Metal Faucets Oversized Kitchen Farm Sink Wall Ovens and Microwaves Over-the-Range Built-in Microwave Smooth-Top Kitchen Ranges Stainless Steel Range Hood Spacious Granite Island Countertops Real Hardwood Cabinet Doors Chandelier Over Island White-Lined Cabinets Zargen Drawer Systems PEX Plumbing Metal Water Shut Off Valves
High-Arch Metal Faucets Oversized Kitchen Farm Sink Wall Ovens and Microwaves Over-the-Range Built-in Microwave Trove Homes
Affordable homes at your fingertips.
Get started with Trove Homes
Find, design, and order your next home in a few clicks.
Sign up Property map Enter your address or APN to check if this home fits on your property
Low-E Insulated Windows Transom Windows R-11 Blown Insulation R-11 Sidewall Insulation R-21 Floor Insulation 2×4 Exterior Walls OSB Wrapped End Walls Deluxe Exterior Siding Packages Galvanized Metal Roof Sliding Glass Doors Southern-Style Porches Front & Back Door Lighting Exterior Receptacle Shutters on Front & Hitch-End of Home Dormer on all Doublewides 60′ Long & Up 6″ Cement Board Eave Fascia on All Sides
Low-E Insulated Windows Transom Windows R-11 Blown Insulation R-11 Sidewall Insulation R-21 Floor Insulation 2×4 Exterior Walls OSB Wrapped End Walls Deluxe Exterior Siding Packages
4 bedrooms
3 full bathrooms
1,976 sq. ft.
28' x 80'
Smooth-Top Kitchen Ranges
Stainless Steel Range Hood
Spacious Granite Island Countertops
Real Hardwood Cabinet Doors Chandelier Over Island White-Lined Cabinets Zargen Drawer Systems PEX Plumbing Metal Water Shut Off Valves Interior
2×4 Marriage Walls 2×6 Floor Joists 3/4″ Tongue & Groove (Nailed & Glued) Floor Decking 3/8″ Rebound Carpet Pad 8′ Flat Ceilings Valances w/Mini Blinds R6 Ducting Throughout Residential Steel Front Door Storm Door Recessed LED Lighting 2-Panel Arched Interior Doors Atrium Doors Shiplap Accent Walls Dining Room and Kitchen Tray Ceilings Residential Textured Ceilings White-Lined Cabinets 40-Gallon Water Heater Smoke Detectors w/Battery Backup 200 Amp Electrical Service Stud-Mounted Switch & Outlet Boxes 12 & 14 Gauge Copper Wiring Rolled I-Beam Frames
2×4 Marriage Walls 2×6 Floor Joists 3/4″ Tongue & Groove (Nailed & Glued) Floor Decking 3/8″ Rebound Carpet Pad 8′ Flat Ceilings Valances w/Mini Blinds R6 Ducting Throughout Residential Steel Front Door Storm Door Recessed LED Lighting 2-Panel Arched Interior Doors
Atrium Doors Shiplap Accent Walls Dining Room and Kitchen Tray Ceilings Residential Textured Ceilings White-Lined Cabinets 40-Gallon Water Heater Smoke Detectors w/Battery Backup 200 Amp Electrical Service Stud-Mounted Switch & Outlet Boxes 12 & 14 Gauge Copper Wiring Rolled I-Beam Frames Bathroom
Wood-Plank Ceramic Tile Glass Subway Tile Backsplash Stone Step Entry for Garden Tub Customized Cabinetry Porcelain Sinks with Metal Faucets Ceramic Tile Sit-Down Showers Rainforest Shower Head Elongated Toilets White-Lined Cabinets Zargen Drawer Systems PEX Plumbing Metal Water Shut Off Valves 36″ High Vanities in Main Bath
Wood-Plank Ceramic Tile Glass Subway Tile Backsplash Stone Step Entry for Garden Tub Customized Cabinetry Porcelain Sinks with Metal Faucets Ceramic Tile Sit-Down Showers Rainforest Shower Head
Elongated Toilets White-Lined Cabinets Zargen Drawer Systems PEX Plumbing Metal Water Shut Off Valves 36″ High Vanities in Main Bath Construction
Low-E Insulated Windows Transom Windows R-11 Blown Insulation R-11 Sidewall Insulation R-21 Floor Insulation
Low-E Insulated Windows Transom Windows R-11 Blown Insulation
R-11 Sidewall Insulation R-21 Floor Insulation Exterior
2×4 Exterior Walls OSB Wrapped End Walls Deluxe Exterior Siding Packages Galvanized Metal Roof Sliding Glass Doors Southern-Style Porches Front & Back Door Lighting Exterior Receptacle Shutters on Front & Hitch-End of Home Dormer on all Doublewides 60′ Long & Up 6″ Cement Board Eave Fascia on All Sides
2×4 Exterior Walls OSB Wrapped End Walls Deluxe Exterior Siding Packages Galvanized Metal Roof Sliding Glass Doors Southern-Style Porches
Front & Back Door Lighting Exterior Receptacle Shutters on Front & Hitch-End of Home Dormer on all Doublewides 60′ Long & Up 6″ Cement Board Eave Fascia on All Sides Dealer License #: DL1609773
Galvanized Metal Roof Sliding Glass Doors Southern-Style Porches Front & Back Door Lighting Exterior Receptacle Shutters on Front & Hitch-End of Home Dormer on all Doublewides 60′ Long & Up 6″ Cement Board Eave Fascia on All Sides High-Arch Metal Faucets Oversized Kitchen Farm Sink Wall Ovens and Microwaves Over-the-Range Built-in Microwave Smooth-Top Kitchen Ranges Stainless Steel Range Hood Spacious Granite Island Countertops Real Hardwood Cabinet Doors Chandelier Over Island White-Lined Cabinets Zargen Drawer Systems PEX Plumbing Metal Water Shut Off Valves
High-Arch Metal Faucets Oversized Kitchen Farm Sink Wall Ovens and Microwaves Over-the-Range Built-in Microwave Smooth-Top Kitchen Ranges Stainless Steel Range Hood Spacious Granite Island Countertops
Real Hardwood Cabinet Doors Chandelier Over Island White-Lined Cabinets Zargen Drawer Systems PEX Plumbing Metal Water Shut Off Valves
Wood-Plank Ceramic Tile Glass Subway Tile Backsplash Stone Step Entry for Garden Tub Customized Cabinetry Porcelain Sinks with Metal Faucets Ceramic Tile Sit-Down Showers Rainforest Shower Head Elongated Toilets White-Lined Cabinets Zargen Drawer Systems PEX Plumbing Metal Water Shut Off Valves 36″ High Vanities in Main Bath
Wood-Plank Ceramic Tile Glass Subway Tile Backsplash Stone Step Entry for Garden Tub Customized Cabinetry Porcelain Sinks with Metal Faucets Ceramic Tile Sit-Down Showers Rainforest Shower Head
Elongated Toilets White-Lined Cabinets Zargen Drawer Systems PEX Plumbing Metal Water Shut Off Valves 36″ High Vanities in Main Bath
2×4 Marriage Walls 2×6 Floor Joists 3/4″ Tongue & Groove (Nailed & Glued) Floor Decking 3/8″ Rebound Carpet Pad 8′ Flat Ceilings Valances w/Mini Blinds R6 Ducting Throughout Residential Steel Front Door Storm Door Recessed LED Lighting 2-Panel Arched Interior Doors Atrium Doors Shiplap Accent Walls Dining Room and Kitchen Tray Ceilings Residential Textured Ceilings White-Lined Cabinets 40-Gallon Water Heater Smoke Detectors w/Battery Backup 200 Amp Electrical Service Stud-Mounted Switch & Outlet Boxes 12 & 14 Gauge Copper Wiring Rolled I-Beam Frames
2×4 Marriage Walls 2×6 Floor Joists 3/4″ Tongue & Groove (Nailed & Glued) Floor Decking 3/8″ Rebound Carpet Pad 8′ Flat Ceilings Valances w/Mini Blinds R6 Ducting Throughout Residential Steel Front Door Storm Door Recessed LED Lighting 2-Panel Arched Interior Doors
Atrium Doors Shiplap Accent Walls Dining Room and Kitchen Tray Ceilings Residential Textured Ceilings White-Lined Cabinets 40-Gallon Water Heater Smoke Detectors w/Battery Backup 200 Amp Electrical Service Stud-Mounted Switch & Outlet Boxes 12 & 14 Gauge Copper Wiring Rolled I-Beam Frames
Images of homes are solely for illustrative purposes and should not be relied upon. Images may not accurately represent the actual condition of a home as constructed, and may contain options which are not standard on all homes.