Homes | Pinehurst 2510
Property map Enter your address or APN to check if this home fits on your property
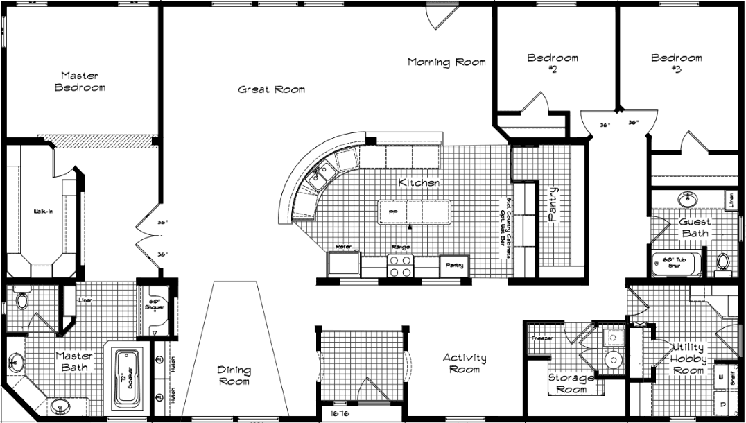
3 bedrooms
2 full bathrooms
2,797 sq. ft.
40' x 70' 8"
Pinehurst standard features
Construction
Foundation Ready 90” Sidewall Height with Cathedral Ceilings Throughout 2x6 Floor Joists 16” O.C. on 26’8” Wide Homes • 2x6 Exterior Walls 16” O.C. 2x4 Interior Walls 24” O.C. Double Rim Joists Full Length Ridge Beams Luan Under Sheetrock on Marriage Line Walls • 30# Roof Load 30-year Architectural Fiberglass Shingles 4:12 Roof Pitch w/14” Eaves on 26’8” Wide Homes 3.31/12 Roof Pitch w/12” Eaves on 29’6” Wide Homes 2.66/12 Roof Pitch w/14” Eaves on 40’ Wide Homes 16” Overhang Both Ends Energy Star R-40 Roof, R-21 Walls & R-33 Floor Insulation Electrical Boxes Nailed to Studs Trove Homes
Affordable homes at your fingertips.
Get started with Trove Homes
Find, design, and order your next home in a few clicks.
Sign up
3 bedrooms
2 full bathrooms
2,797 sq. ft.
40' x 70' 8"
Prismatic Dormer w/Trap Windows (per model)
Stacked Stone Accent Under Trap Windows
Foundation Ready 90” Sidewall Height with Cathedral Ceilings Throughout 2x6 Floor Joists 16” O.C. on 26’8” Wide Homes • 2x6 Exterior Walls 16” O.C. 2x4 Interior Walls 24” O.C. Double Rim Joists Full Length Ridge Beams Luan Under Sheetrock on Marriage Line Walls • 30# Roof Load 30-year Architectural Fiberglass Shingles
4:12 Roof Pitch w/14” Eaves on 26’8” Wide Homes 3.31/12 Roof Pitch w/12” Eaves on 29’6” Wide Homes 2.66/12 Roof Pitch w/14” Eaves on 40’ Wide Homes 16” Overhang Both Ends Energy Star R-40 Roof, R-21 Walls & R-33 Floor Insulation Electrical Boxes Nailed to Studs Prismatic Dormer w/Trap Windows (per model) Stacked Stone Accent Under Trap Windows Exterior
36” White, Almond or Clay Insulated Fiberglass Front & Rear Doors (Rear Door is ½ Lite Window Door) White, Almond or Clay Low E, Argon Gas Filled Vinyl Dual Glaze Windows Lap Siding Front Door Side, Smart Panel Vertical Siding on the other Three Sides Window Trim Around All Windows
36” White, Almond or Clay Insulated Fiberglass Front & Rear Doors (Rear Door is ½ Lite Window Door) White, Almond or Clay Low E, Argon Gas Filled Vinyl Dual Glaze Windows
Lap Siding Front Door Side, Smart Panel Vertical Siding on the other Three Sides Window Trim Around All Windows Interior
Textured Walls & Ceilings w/Radius Corners Choices Of Interior Paints- washable eggshell finish Textured Window Surrounds with Square Corners 2” White Faux Wood Blinds throughout. Carpeting in Living Room, Dining Room, Family Room, Activity Room, Hall, Bedrooms – Per Plan 6# Rebond Carpet Pad Upgraded Vinyl Floor Covering in Kitchen, Master Bathroom, Guest Bath & Utility – Per Plan Luxury Vinyl Plank Flooring at Entry Foyer Glass Light Fixtures w/Switched Bedroom Ceiling Lights Dining Room Chandlier Recessed Can Lights in Walk-In Closets & Walk-In Pantries White 36” 2 Panel Grand Arch Interior Passage Doors in Living & Bedroom Areas-Where Applicable (30” Doors Elsewhere) Passage Doors on Wardrobes Wood Shelves/Rods In Closets 4” Baseboard Molding in Living Areas & Lino Areas
Textured Walls & Ceilings w/Radius Corners Choices Of Interior Paints- washable eggshell finish Textured Window Surrounds with Square Corners 2” White Faux Wood Blinds throughout. Carpeting in Living Room, Dining Room, Family Room, Activity Room, Hall, Bedrooms – Per Plan 6# Rebond Carpet Pad Upgraded Vinyl Floor Covering in Kitchen, Master Bathroom, Guest Bath & Utility – Per Plan
Luxury Vinyl Plank Flooring at Entry Foyer Glass Light Fixtures w/Switched Bedroom Ceiling Lights Dining Room Chandlier Recessed Can Lights in Walk-In Closets & Walk-In Pantries White 36” 2 Panel Grand Arch Interior Passage Doors in Living & Bedroom Areas-Where Applicable (30” Doors Elsewhere) Passage Doors on Wardrobes Wood Shelves/Rods In Closets 4” Baseboard Molding in Living Areas & Lino Areas Kitchen
Energy Star® Appliances 20’ Frost Free Refrigerator with Icemaker 30” Deluxe Electric Range Dishwasher Wood Cabinet Doors w/Wood Face Frames with Overhead Cabinet Crown Molding & Cap Molding throughout Hi-lo Cabinet Design Satin Nickel Cabinet Door and Drawer Pulls Drawer Over Door Cabinet Construction Bank of Drawers Cabinet Above Refrigerator 31” Overhead Cabinets with Adjustable Shelves White Acrylic Sink w/Dual Control Faucet Décor Laminate Countertop w/Rounded Edge 6” Ceramic Subway Tile Backsplash Cap Molding on Bottom of All Overhead Cabinets 4 LED Can Lights-1 over sink, three over work points. 2 Under Cabinet Lights Roll Out Trash Cans Self Closing Deluxe Roller Bearing Drawer Guides Pot & Pan Drawer USB Receptacle in Kitchen
Energy Star® Appliances 20’ Frost Free Refrigerator with Icemaker 30” Deluxe Electric Range Dishwasher Wood Cabinet Doors w/Wood Face Frames with Overhead Cabinet Crown Molding & Cap Molding throughout Hi-lo Cabinet Design Satin Nickel Cabinet Door and Drawer Pulls Drawer Over Door Cabinet Construction Bank of Drawers Cabinet Above Refrigerator 31” Overhead Cabinets with Adjustable Shelves
White Acrylic Sink w/Dual Control Faucet Décor Laminate Countertop w/Rounded Edge 6” Ceramic Subway Tile Backsplash Cap Molding on Bottom of All Overhead Cabinets 4 LED Can Lights-1 over sink, three over work points. 2 Under Cabinet Lights Roll Out Trash Cans Self Closing Deluxe Roller Bearing Drawer Guides Pot & Pan Drawer USB Receptacle in Kitchen Mechanical
All Electric Home w/200 AMP Service (Electric Range, 40 Gallon Electric Water Heater & Electric Furnace) Exterior Receptacle Near Rear Door Exterior Frost-Free Faucet Near Rear Door Certified Heat Ducts with In-Floor Crossovers Heat Tape Receptacle at Water Inlet Master Whole House Water Shut-Off Valve Individual Water Shut-Offs @ Sinks & Toilets Dual Control Metal Faucets—Price Pfister Toe Kick Registers in Kitchen and Bathrooms Conduit From Panel Box for Air Ready/Heat Pump Ready
All Electric Home w/200 AMP Service (Electric Range, 40 Gallon Electric Water Heater & Electric Furnace) Exterior Receptacle Near Rear Door Exterior Frost-Free Faucet Near Rear Door Certified Heat Ducts with In-Floor Crossovers Heat Tape Receptacle at Water Inlet
Master Whole House Water Shut-Off Valve Individual Water Shut-Offs @ Sinks & Toilets Dual Control Metal Faucets—Price Pfister Toe Kick Registers in Kitchen and Bathrooms Conduit From Panel Box for Air Ready/Heat Pump Ready Bathroom
60” 1 Piece Fiberglass Tub/Showers with overflow drains China Lavs Décor Laminate Countertop & Edge Wood Trim on mirrors 6” Ceramic Subway Tile Backsplash Satin Nickel Towel Bars & Paper Holders Bank of Drawers in Master Bath 18” Tall Elongated Toilets
60” 1 Piece Fiberglass Tub/Showers with overflow drains China Lavs Décor Laminate Countertop & Edge Wood Trim on mirrors
6” Ceramic Subway Tile Backsplash Satin Nickel Towel Bars & Paper Holders Bank of Drawers in Master Bath 18” Tall Elongated Toilets Dealer License #: DL1609773
Foundation Ready 90” Sidewall Height with Cathedral Ceilings Throughout 2x6 Floor Joists 16” O.C. on 26’8” Wide Homes • 2x6 Exterior Walls 16” O.C. 2x4 Interior Walls 24” O.C. Double Rim Joists Full Length Ridge Beams Luan Under Sheetrock on Marriage Line Walls • 30# Roof Load 30-year Architectural Fiberglass Shingles 4:12 Roof Pitch w/14” Eaves on 26’8” Wide Homes 3.31/12 Roof Pitch w/12” Eaves on 29’6” Wide Homes 2.66/12 Roof Pitch w/14” Eaves on 40’ Wide Homes 16” Overhang Both Ends Energy Star R-40 Roof, R-21 Walls & R-33 Floor Insulation Electrical Boxes Nailed to Studs Prismatic Dormer w/Trap Windows (per model) Stacked Stone Accent Under Trap Windows 36” White, Almond or Clay Insulated Fiberglass Front & Rear Doors (Rear Door is ½ Lite Window Door) White, Almond or Clay Low E, Argon Gas Filled Vinyl Dual Glaze Windows
Lap Siding Front Door Side, Smart Panel Vertical Siding on the other Three Sides
Window Trim Around All Windows
Foundation Ready 90” Sidewall Height with Cathedral Ceilings Throughout 2x6 Floor Joists 16” O.C. on 26’8” Wide Homes • 2x6 Exterior Walls 16” O.C. 2x4 Interior Walls 24” O.C. Double Rim Joists Full Length Ridge Beams Luan Under Sheetrock on Marriage Line Walls • 30# Roof Load 30-year Architectural Fiberglass Shingles 4:12 Roof Pitch w/14” Eaves on 26’8” Wide Homes 3.31/12 Roof Pitch w/12” Eaves on 29’6” Wide Homes
2.66/12 Roof Pitch w/14” Eaves on 40’ Wide Homes 16” Overhang Both Ends Energy Star R-40 Roof, R-21 Walls & R-33 Floor Insulation Electrical Boxes Nailed to Studs Prismatic Dormer w/Trap Windows (per model) Stacked Stone Accent Under Trap Windows 36” White, Almond or Clay Insulated Fiberglass Front & Rear Doors (Rear Door is ½ Lite Window Door) White, Almond or Clay Low E, Argon Gas Filled Vinyl Dual Glaze Windows Lap Siding Front Door Side, Smart Panel Vertical Siding on the other Three Sides Window Trim Around All Windows
Images of homes are solely for illustrative purposes and should not be relied upon. Images may not accurately represent the actual condition of a home as constructed, and may contain options which are not standard on all homes.