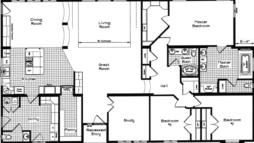
Homes | Grand Manor 6013