Homes | Cedar Canyon 2006-2
Property map Enter your address or APN to check if this home fits on your property
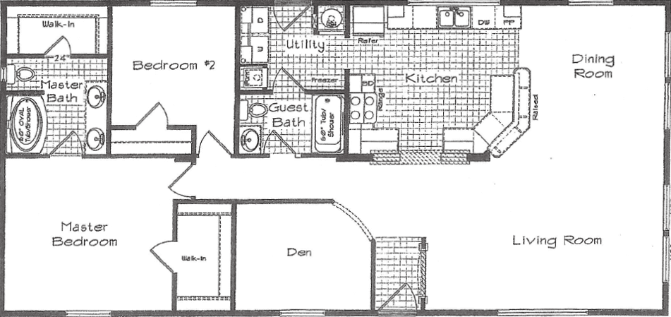
Cedar Canyon 2006-2 Continue
2 bedrooms
2 full bathrooms
1,494 sq. ft.
26' 8" x 56'
Cedar Canyon MultiSection standard features
Construction
Foundation Ready 90” Sidewall Height with Cathedral Ceilings Throughout 2x6 Floor Joists 16” O.C. on 26’8” Wide Homes 2x8 Floor Joists 16” O.C. on 29’6” Wide Homes Double Rim Joists Full Length Ridge Beam Luan Under Sheetrock on Marriage Walls 2x6 Exterior Walls 16” O.C. 2x4 Interior Walls 24” O.C. 30# Roof Load 30-year Architectural Fiberglass Shingles 4:12 Roof Pitch w/14” Eaves on 26’8” Wide Homes, 3:31/12 Roof Pitch w/12” Eaves on 29’6” Wide Homes 2.66:12 Roof Pitch w/14” Eaves on 40’ Wide Homes 4:12 Roof Pitch w/8” Eaves on 19’8” Wide Homes Trove Homes
Affordable homes at your fingertips.
Get started with Trove Homes
Find, design, and order your next home in a few clicks.
Sign up
2 bedrooms
2 full bathrooms
1,494 sq. ft.
26' 8" x 56'
4:12 Roof Pitch w/14” Eaves on 23’8” Wide Homes
16” Overhang Both Ends
Energy Star R-40 Roof, R-21 Walls & R-33 Floor Insulation
Electrical Boxes Nailed to Studs
Foundation Ready 90” Sidewall Height with Cathedral Ceilings Throughout 2x6 Floor Joists 16” O.C. on 26’8” Wide Homes 2x8 Floor Joists 16” O.C. on 29’6” Wide Homes Double Rim Joists Full Length Ridge Beam Luan Under Sheetrock on Marriage Walls 2x6 Exterior Walls 16” O.C. 2x4 Interior Walls 24” O.C. 30# Roof Load
30-year Architectural Fiberglass Shingles 4:12 Roof Pitch w/14” Eaves on 26’8” Wide Homes, 3:31/12 Roof Pitch w/12” Eaves on 29’6” Wide Homes 2.66:12 Roof Pitch w/14” Eaves on 40’ Wide Homes 4:12 Roof Pitch w/8” Eaves on 19’8” Wide Homes 4:12 Roof Pitch w/14” Eaves on 23’8” Wide Homes 16” Overhang Both Ends Energy Star R-40 Roof, R-21 Walls & R-33 Floor Insulation Electrical Boxes Nailed to Studs Exterior
36” White Insulated Fiberglass Front & Rear Doors White Low E, Argon Gas filled Vinyl Dual Glaze Windows 50 Year Smart Panel Siding & Trim Window Trim Around All Windows
36” White Insulated Fiberglass Front & Rear Doors White Low E, Argon Gas filled Vinyl Dual Glaze Windows
50 Year Smart Panel Siding & Trim Window Trim Around All Windows Interior
Textured Walls & Ceilings w/Radius Corners Choices Of Interior Paints-washable eggshell finish Textured Window Surrounds with Square Corners 2” White Faux Wood Blinds throughout. Carpeting in Living Room, Dining Room, Family Room, Activity Room, Hall, Bedrooms – Per Plan 6# Rebond Carpet Pad Upgraded Vinyl Floor Covering in Kitchen, Master Bathroom, Guest Bath & Utility – Per Plan Luxury Vinyl Planks at Entry Foyer Glass Light Fixtures w/Switched Ceiling Lights in Bedroom & Dens Recessed Can Lights in Walk-In Closets & Walk-In Pantries Dining Room Chandlier Shelf over Washer/Dryer location White 30” 2 Panel Grand Arch Interior Passage Doors (w/Painted Trim) Passage Doors on Wardrobes Wood Shelves/Rods in Closets
Textured Walls & Ceilings w/Radius Corners Choices Of Interior Paints-washable eggshell finish Textured Window Surrounds with Square Corners 2” White Faux Wood Blinds throughout. Carpeting in Living Room, Dining Room, Family Room, Activity Room, Hall, Bedrooms – Per Plan 6# Rebond Carpet Pad Upgraded Vinyl Floor Covering in Kitchen, Master Bathroom, Guest Bath & Utility – Per Plan Luxury Vinyl Planks at Entry Foyer
Glass Light Fixtures w/Switched Ceiling Lights in Bedroom & Dens Recessed Can Lights in Walk-In Closets & Walk-In Pantries Dining Room Chandlier Shelf over Washer/Dryer location White 30” 2 Panel Grand Arch Interior Passage Doors (w/Painted Trim) Passage Doors on Wardrobes Wood Shelves/Rods in Closets Kitchen
Energy Star® Appliances 20’ Frost Free Refrigerator w Ice Maker 30” Deluxe Electric Range Dishwasher Natural Wood Cabinet Doors w/Wood Face Frames 31” Overhead Cabinets w/Adjustable Shelves Hi-lo Cabinet Design with Cove Molding and Cap Molding throughout Satin Nickel Cabinet Door Pulls Drawer Over Door Cabinet Construction Deluxe Roller Bearing Drawer Guides T/O Bank of Drawers Overhead Cabinets Above Refrigerator Stainless Steel Sink w/Dual Control Faucet Décor Laminate Countertop & Edge 6” Ceramic Subway Tile Backsplash 4 LED Can Lights-1 over sink, three over work points USB Receptacle in Kitchen
Energy Star® Appliances 20’ Frost Free Refrigerator w Ice Maker 30” Deluxe Electric Range Dishwasher Natural Wood Cabinet Doors w/Wood Face Frames 31” Overhead Cabinets w/Adjustable Shelves Hi-lo Cabinet Design with Cove Molding and Cap Molding throughout Satin Nickel Cabinet Door Pulls Drawer Over Door Cabinet Construction
Deluxe Roller Bearing Drawer Guides T/O Bank of Drawers Overhead Cabinets Above Refrigerator Stainless Steel Sink w/Dual Control Faucet Décor Laminate Countertop & Edge 6” Ceramic Subway Tile Backsplash 4 LED Can Lights-1 over sink, three over work points USB Receptacle in Kitchen Mechanical
All Electric Home w/200 AMP Service (Electric Range, 40 Gallon Electric Water Heater & Electric Furnace) Exterior Receptacle Near Rear Door Exterior Frost-Free Faucet Near Rear Door Certified Heat Ducts with In-Floor Crossovers Heat Tape Receptacle at Water Inlet Master Whole House Water Shut-Off Valve Individual Water Shut-Offs @ Sinks & Toilets Dual Control Metal Faucets—Price Pfister Toe Kick Heat Registers in Kitchen and Bathrooms Conduit From Panel Box for Air Ready/Heat Pump Ready
All Electric Home w/200 AMP Service (Electric Range, 40 Gallon Electric Water Heater & Electric Furnace) Exterior Receptacle Near Rear Door Exterior Frost-Free Faucet Near Rear Door Certified Heat Ducts with In-Floor Crossovers Heat Tape Receptacle at Water Inlet
Master Whole House Water Shut-Off Valve Individual Water Shut-Offs @ Sinks & Toilets Dual Control Metal Faucets—Price Pfister Toe Kick Heat Registers in Kitchen and Bathrooms Conduit From Panel Box for Air Ready/Heat Pump Ready Bathroom
60” 1 Piece Fiberglass Tub/Showers with overflow drains China Lavs Décor Laminate Countertop & Edge 6” Ceramic Subway Tile Back Splash Satin Nickel Towel Bars & Paper Holders Bank Of Drawers in Master Bath Wood Trim on mirrors. 18” Tall Elongated Toilets Wall Lights Above Bath Mirrors Along with Ceiling Light in Master Bath
60” 1 Piece Fiberglass Tub/Showers with overflow drains China Lavs Décor Laminate Countertop & Edge 6” Ceramic Subway Tile Back Splash Satin Nickel Towel Bars & Paper Holders
Bank Of Drawers in Master Bath Wood Trim on mirrors. 18” Tall Elongated Toilets Wall Lights Above Bath Mirrors Along with Ceiling Light in Master Bath Other
Walk in tile showers Quartz Countertops Transom Windows Butler Pantry Covered Porches Higher Roof Loads (45lb, 60lb, 90lb, 120lb & 150lb)
Walk in tile showers Quartz Countertops Transom Windows
Butler Pantry Covered Porches Higher Roof Loads (45lb, 60lb, 90lb, 120lb & 150lb) Dealer License #: DL1609773
Foundation Ready 90” Sidewall Height with Cathedral Ceilings Throughout 2x6 Floor Joists 16” O.C. on 26’8” Wide Homes 2x8 Floor Joists 16” O.C. on 29’6” Wide Homes Double Rim Joists Full Length Ridge Beam Luan Under Sheetrock on Marriage Walls 2x6 Exterior Walls 16” O.C. 2x4 Interior Walls 24” O.C. 30# Roof Load 30-year Architectural Fiberglass Shingles 4:12 Roof Pitch w/14” Eaves on 26’8” Wide Homes, 3:31/12 Roof Pitch w/12” Eaves on 29’6” Wide Homes 2.66:12 Roof Pitch w/14” Eaves on 40’ Wide Homes 4:12 Roof Pitch w/8” Eaves on 19’8” Wide Homes 4:12 Roof Pitch w/14” Eaves on 23’8” Wide Homes 16” Overhang Both Ends Energy Star R-40 Roof, R-21 Walls & R-33 Floor Insulation Electrical Boxes Nailed to Studs 36” White Insulated Fiberglass Front & Rear Doors
White Low E, Argon Gas filled Vinyl Dual Glaze Windows
50 Year Smart Panel Siding & Trim
Window Trim Around All Windows
Foundation Ready 90” Sidewall Height with Cathedral Ceilings Throughout 2x6 Floor Joists 16” O.C. on 26’8” Wide Homes 2x8 Floor Joists 16” O.C. on 29’6” Wide Homes Double Rim Joists Full Length Ridge Beam Luan Under Sheetrock on Marriage Walls 2x6 Exterior Walls 16” O.C. 2x4 Interior Walls 24” O.C. 30# Roof Load 30-year Architectural Fiberglass Shingles 4:12 Roof Pitch w/14” Eaves on 26’8” Wide Homes,
3:31/12 Roof Pitch w/12” Eaves on 29’6” Wide Homes 2.66:12 Roof Pitch w/14” Eaves on 40’ Wide Homes 4:12 Roof Pitch w/8” Eaves on 19’8” Wide Homes 4:12 Roof Pitch w/14” Eaves on 23’8” Wide Homes 16” Overhang Both Ends Energy Star R-40 Roof, R-21 Walls & R-33 Floor Insulation Electrical Boxes Nailed to Studs 36” White Insulated Fiberglass Front & Rear Doors White Low E, Argon Gas filled Vinyl Dual Glaze Windows 50 Year Smart Panel Siding & Trim Window Trim Around All Windows
Images of homes are solely for illustrative purposes and should not be relied upon. Images may not accurately represent the actual condition of a home as constructed, and may contain options which are not standard on all homes.