Homes | The Keystone
Property map Enter your address or APN to check if this home fits on your property
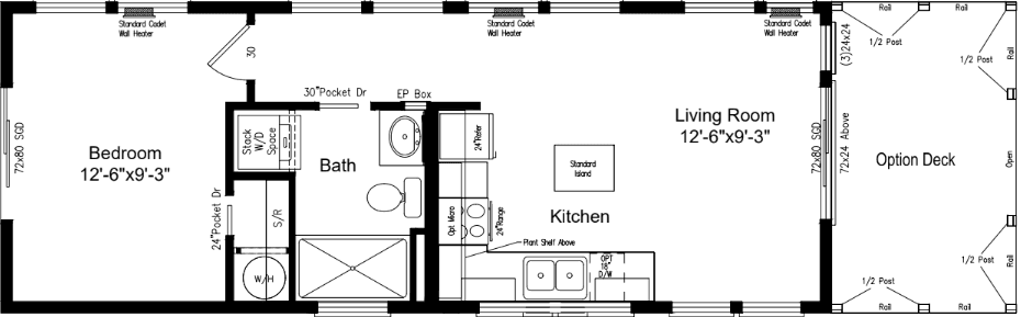
1 bedroom
1 full bathroom
486 sq. ft.
13' 6" x 36'
American Freedom standard features
Exterior
Siding: Allura Panel Fibercement Traditional Cedar 30YR Siding Underlayment: House Wrap Trim: 3.5" Allura Fibercement Fascia: 7.5" Allura Fibercement Soffit: HardiSoffit Cedarmill Roofing: Architectural Shingles Roofing Underlayment: Sythetic Windows: Vinyl Frame Low-E Dual Glazed Front Door: 36" Six-Panel Rear Door: 36" Six-Panel Exterior Floor Decking: Stained Wood- per print Hose Bib: Optional Dormer: Optional Trove Homes
Affordable homes at your fingertips.
Get started with Trove Homes
Find, design, and order your next home in a few clicks.
Sign up
1 bedroom
1 full bathroom
486 sq. ft.
13' 6" x 36'
Trim: 3.5" Allura Fibercement
Fascia: 7.5" Allura Fibercement
Soffit: HardiSoffit Cedarmill
Roofing: Architectural Shingles
Roofing Underlayment: Sythetic
Windows: Vinyl Frame Low-E Dual Glazed Front Door: 36" Six-Panel Rear Door: 36" Six-Panel Exterior Floor Decking: Stained Wood- per print Hose Bib: Optional Dormer: Optional Construction
Frame: I-Beam Chassis Axles & tires: Recycled Floor Joist: 2x6 16"OC -13'6" floor (2x8-19.2"o/c for 14'8") Floor Decking: 19/32 OSB Tongue & Groove Exterior Walls: 2x6 16" OC / 96" Height Interior Walls: 24" OC Roof Trusses: 24" OC Roof Pitch & Load: 4/12 13'6" Wide, 30# , High & Low Roof Vents Eaves & Overhangs: 6" Eaves, 12" End Overhangs Ceiling: Flat Insulation: R40-R21-R38 (Ceiling - Walls - Floor) Heating: EB-15F Electric Furnace* Duct System: Insulated Graduated Fiberglass Heat Registers: In Line Air Return: Over Door Cross Overs: N/A Ventilation: Baths & Whole Home Air & Vapor Barrier: Sill Seal with Spray Vapor Barrier Crawl Space: N/A Attic Access: N/A
Frame: I-Beam Chassis Axles & tires: Recycled Floor Joist: 2x6 16"OC -13'6" floor (2x8-19.2"o/c for 14'8") Floor Decking: 19/32 OSB Tongue & Groove Exterior Walls: 2x6 16" OC / 96" Height Interior Walls: 24" OC Roof Trusses: 24" OC Roof Pitch & Load: 4/12 13'6" Wide, 30# , High & Low Roof Vents Eaves & Overhangs: 6" Eaves, 12" End Overhangs Ceiling: Flat
Insulation: R40-R21-R38 (Ceiling - Walls - Floor) Heating: EB-15F Electric Furnace* Duct System: Insulated Graduated Fiberglass Heat Registers: In Line Air Return: Over Door Cross Overs: N/A Ventilation: Baths & Whole Home Air & Vapor Barrier: Sill Seal with Spray Vapor Barrier Crawl Space: N/A Attic Access: N/A Interior
Drywall Finish: Textured & Painted Prism White Drywall Corners: Square Including Windows w/Wood Sill Marriage Line Close-Up: N/A Cabinets: Durabuilt with Adjustable Shelves Cabinet Doors: Picture Frame Alkorcell Cabinet Pulls: Satin Silver Knobs Countertops: Wilsonart Laminate Counter Edge: Wilsonart Laminate Backsplash: Stacked Ceramic Tile Interior Doors: White Raised Panel Interior Door Hardware: Silver Lever Handles Door Trim: 2 1/4" White Square Door Casing Baseboards: 2 1/4" Square Baseboard Vinyl Areas Only Ceiling Cove: N/A Closet Shelving: Wood With Dowel Rod Window Coverings: Plant Built Valances Blinds: Metal Miniblinds Throughout Carpet: Edgewater Pad: 7#, 7/16" Thick Rebond Carpet Pad Vinyl Flooring: Kitchen, DR, LR, Utility, & Baths Tile Flooring: Optional Laminate Flooring: Optional Accent Paint: Optional
Drywall Finish: Textured & Painted Prism White Drywall Corners: Square Including Windows w/Wood Sill Marriage Line Close-Up: N/A Cabinets: Durabuilt with Adjustable Shelves Cabinet Doors: Picture Frame Alkorcell Cabinet Pulls: Satin Silver Knobs Countertops: Wilsonart Laminate Counter Edge: Wilsonart Laminate Backsplash: Stacked Ceramic Tile Interior Doors: White Raised Panel Interior Door Hardware: Silver Lever Handles Door Trim: 2 1/4" White Square Door Casing
Baseboards: 2 1/4" Square Baseboard Vinyl Areas Only Ceiling Cove: N/A Closet Shelving: Wood With Dowel Rod Window Coverings: Plant Built Valances Blinds: Metal Miniblinds Throughout Carpet: Edgewater Pad: 7#, 7/16" Thick Rebond Carpet Pad Vinyl Flooring: Kitchen, DR, LR, Utility, & Baths Tile Flooring: Optional Laminate Flooring: Optional Kitchen
Kitchen Sink: 7" Deep Stainless Steel Double Bowl Kitchen Faucet: Nickel Single Lever Kitchen Sink Front: Fixed Drawer Front Shut Off Valves: All Fixtures & Whole Home Range: Black Freestanding Electric Range Ventilation: Black Broan Vertical Range Hood Refrigerator: Black 18cf Top & Bottom Frost Free Over Refrigerator: Shelf Water Heater: Rheem 40 Gal Electric Water Heater Access: Access Panel Utility Plumbing: Plumb for Washer Single Lever Gate Valves Special Plumbing: Plumb for Icemaker Gas Lines: N/A
Kitchen Sink: 7" Deep Stainless Steel Double Bowl Kitchen Faucet: Nickel Single Lever Kitchen Sink Front: Fixed Drawer Front Shut Off Valves: All Fixtures & Whole Home Range: Black Freestanding Electric Range Ventilation: Black Broan Vertical Range Hood Refrigerator: Black 18cf Top & Bottom Frost Free
Over Refrigerator: Shelf Water Heater: Rheem 40 Gal Electric Water Heater Access: Access Panel Utility Plumbing: Plumb for Washer Single Lever Gate Valves Special Plumbing: Plumb for Icemaker Gas Lines: N/A Mechanical
Mainpanel: 200 Amp Electrical Service Switches: Rocker Type Light Bulbs: LED Bulbs Installed Entry Lights: White Wall Mount Jelly Jar Closet Lights (Walk-in Size): Recessed LED Can Light Wall Light: Optional Dining Room Lights: Recessed LED Can Light Morning Room Lights: Single Pendant light per plan Kitchen Area Lights: (4) Recessed LED Can Lights Kitchen Sink Light: Recessed LED Can Light Island or Bar Lighting: Optional Utility & Hall Lights: 4" LED Can Light Bathroom Light: Bathroom Strip Lights Metro Bedrooms Lights: Overhead Ceiling Light 2 Bulb Metro Fan (Wire): Optional TV Jack (Plate & Conduit): Optional Phone Jack (Plate & Conduit: Optional Freezer (Wire): Optional Dryer Hookup: Wire 220V For Dryer GFCI Recept: (1) Exterior per plan Safety: Smoke Detectors
Mainpanel: 200 Amp Electrical Service Switches: Rocker Type Light Bulbs: LED Bulbs Installed Entry Lights: White Wall Mount Jelly Jar Closet Lights (Walk-in Size): Recessed LED Can Light Wall Light: Optional Dining Room Lights: Recessed LED Can Light Morning Room Lights: Single Pendant light per plan Kitchen Area Lights: (4) Recessed LED Can Lights Kitchen Sink Light: Recessed LED Can Light Island or Bar Lighting: Optional
Utility & Hall Lights: 4" LED Can Light Bathroom Light: Bathroom Strip Lights Metro Bedrooms Lights: Overhead Ceiling Light 2 Bulb Metro Fan (Wire): Optional TV Jack (Plate & Conduit): Optional Phone Jack (Plate & Conduit: Optional Freezer (Wire): Optional Dryer Hookup: Wire 220V For Dryer GFCI Recept: (1) Exterior per plan Safety: Smoke Detectors Bathroom
Master Bathroom Tub / Shower: 60" 1-piece Tub/Shower Combo Tub / Shower Faucet: Single Control Anti-Scald Diverter Tub: N/A Lavy: China Sink With Overflow Lavy Faucet: Single Lever Lavy Faucet Toilet: Elongated Bowl Mirror: Trimmed Above Sink Hardware: Brushed Nickel Towel Hook & Tissue Holder Secondary Bathroom Tub / Shower: 60" 1-piece Tub/Shower Combo Tub / Shower Faucet: Single Control Anti-Scald Diverter Lavy: China Sink With Overflow Lavy Faucet: Single Lever Lavy Faucet Toilet: Elongated Bowl Mirror: Trimmed Above Sink Hardware: Brushed Nickel Towel Hook & Tissue Holder
Master Bathroom Tub / Shower: 60" 1-piece Tub/Shower Combo Tub / Shower Faucet: Single Control Anti-Scald Diverter Tub: N/A Lavy: China Sink With Overflow Lavy Faucet: Single Lever Lavy Faucet Toilet: Elongated Bowl Mirror: Trimmed Above Sink Hardware: Brushed Nickel Towel Hook & Tissue Holder
Secondary Bathroom Tub / Shower: 60" 1-piece Tub/Shower Combo Tub / Shower Faucet: Single Control Anti-Scald Diverter Lavy: China Sink With Overflow Lavy Faucet: Single Lever Lavy Faucet Toilet: Elongated Bowl Mirror: Trimmed Above Sink Hardware: Brushed Nickel Towel Hook & Tissue Holder Dealer License #: DL1609773
Siding: Allura Panel Fibercement Traditional Cedar 30YR Siding Underlayment: House Wrap Trim: 3.5" Allura Fibercement Fascia: 7.5" Allura Fibercement Soffit: HardiSoffit Cedarmill Roofing: Architectural Shingles Roofing Underlayment: Sythetic Windows: Vinyl Frame Low-E Dual Glazed Front Door: 36" Six-Panel Rear Door: 36" Six-Panel Exterior Floor Decking: Stained Wood- per print Hose Bib: Optional Dormer: Optional Frame: I-Beam Chassis Axles & tires: Recycled Floor Joist: 2x6 16"OC -13'6" floor (2x8-19.2"o/c for 14'8") Floor Decking: 19/32 OSB Tongue & Groove Exterior Walls: 2x6 16" OC / 96" Height Interior Walls: 24" OC Roof Trusses: 24" OC Roof Pitch & Load: 4/12 13'6" Wide, 30# , High & Low Roof Vents Eaves & Overhangs: 6" Eaves, 12" End Overhangs
Accent Paint: Optional
Ceiling: Flat
Insulation: R40-R21-R38 (Ceiling - Walls - Floor)
Heating: EB-15F Electric Furnace*
Duct System: Insulated Graduated Fiberglass
Heat Registers: In Line
Air Return: Over Door
Cross Overs: N/A
Ventilation: Baths & Whole Home
Air & Vapor Barrier: Sill Seal with Spray Vapor Barrier
Crawl Space: N/A
Attic Access: N/A
Siding: Allura Panel Fibercement Traditional Cedar 30YR Siding Underlayment: House Wrap Trim: 3.5" Allura Fibercement Fascia: 7.5" Allura Fibercement Soffit: HardiSoffit Cedarmill Roofing: Architectural Shingles Roofing Underlayment: Sythetic Windows: Vinyl Frame Low-E Dual Glazed Front Door: 36" Six-Panel Rear Door: 36" Six-Panel Exterior Floor Decking: Stained Wood- per print Hose Bib: Optional Dormer: Optional Frame: I-Beam Chassis Axles & tires: Recycled Floor Joist: 2x6 16"OC -13'6" floor (2x8-19.2"o/c for 14'8") Floor Decking: 19/32 OSB Tongue & Groove
Exterior Walls: 2x6 16" OC / 96" Height Interior Walls: 24" OC Roof Trusses: 24" OC Roof Pitch & Load: 4/12 13'6" Wide, 30# , High & Low Roof Vents Eaves & Overhangs: 6" Eaves, 12" End Overhangs Ceiling: Flat Insulation: R40-R21-R38 (Ceiling - Walls - Floor) Heating: EB-15F Electric Furnace* Duct System: Insulated Graduated Fiberglass Heat Registers: In Line Air Return: Over Door Cross Overs: N/A Ventilation: Baths & Whole Home Air & Vapor Barrier: Sill Seal with Spray Vapor Barrier Crawl Space: N/A Attic Access: N/A Kitchen Sink: 7" Deep Stainless Steel Double Bowl Kitchen Faucet: Nickel Single Lever Kitchen Sink Front: Fixed Drawer Front Shut Off Valves: All Fixtures & Whole Home Range: Black Freestanding Electric Range Ventilation: Black Broan Vertical Range Hood Refrigerator: Black 18cf Top & Bottom Frost Free Over Refrigerator: Shelf Water Heater: Rheem 40 Gal Electric Water Heater Access: Access Panel Utility Plumbing: Plumb for Washer Single Lever Gate Valves Special Plumbing: Plumb for Icemaker Gas Lines: N/A
Kitchen Sink: 7" Deep Stainless Steel Double Bowl Kitchen Faucet: Nickel Single Lever Kitchen Sink Front: Fixed Drawer Front Shut Off Valves: All Fixtures & Whole Home Range: Black Freestanding Electric Range Ventilation: Black Broan Vertical Range Hood Refrigerator: Black 18cf Top & Bottom Frost Free
Over Refrigerator: Shelf Water Heater: Rheem 40 Gal Electric Water Heater Access: Access Panel Utility Plumbing: Plumb for Washer Single Lever Gate Valves Special Plumbing: Plumb for Icemaker Gas Lines: N/A
Drywall Finish: Textured & Painted Prism White Drywall Corners: Square Including Windows w/Wood Sill Marriage Line Close-Up: N/A Cabinets: Durabuilt with Adjustable Shelves Cabinet Doors: Picture Frame Alkorcell Cabinet Pulls: Satin Silver Knobs Countertops: Wilsonart Laminate Counter Edge: Wilsonart Laminate Backsplash: Stacked Ceramic Tile Interior Doors: White Raised Panel Interior Door Hardware: Silver Lever Handles Door Trim: 2 1/4" White Square Door Casing Baseboards: 2 1/4" Square Baseboard Vinyl Areas Only Ceiling Cove: N/A Closet Shelving: Wood With Dowel Rod Window Coverings: Plant Built Valances Blinds: Metal Miniblinds Throughout Carpet: Edgewater Pad: 7#, 7/16" Thick Rebond Carpet Pad Vinyl Flooring: Kitchen, DR, LR, Utility, & Baths Tile Flooring: Optional Laminate Flooring: Optional Accent Paint: Optional
Drywall Finish: Textured & Painted Prism White Drywall Corners: Square Including Windows w/Wood Sill Marriage Line Close-Up: N/A Cabinets: Durabuilt with Adjustable Shelves Cabinet Doors: Picture Frame Alkorcell Cabinet Pulls: Satin Silver Knobs Countertops: Wilsonart Laminate Counter Edge: Wilsonart Laminate Backsplash: Stacked Ceramic Tile Interior Doors: White Raised Panel Interior Door Hardware: Silver Lever Handles Door Trim: 2 1/4" White Square Door Casing
Baseboards: 2 1/4" Square Baseboard Vinyl Areas Only Ceiling Cove: N/A Closet Shelving: Wood With Dowel Rod Window Coverings: Plant Built Valances Blinds: Metal Miniblinds Throughout Carpet: Edgewater Pad: 7#, 7/16" Thick Rebond Carpet Pad Vinyl Flooring: Kitchen, DR, LR, Utility, & Baths Tile Flooring: Optional Laminate Flooring: Optional
Images of homes are solely for illustrative purposes and should not be relied upon. Images may not accurately represent the actual condition of a home as constructed, and may contain options which are not standard on all homes.
Accent Paint: Optional