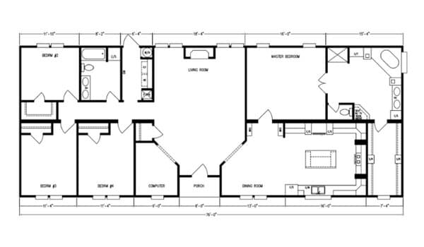
Homes | KB-3220