Homes | Coronado 28523B
Property map Enter your address or APN to check if this home fits on your property
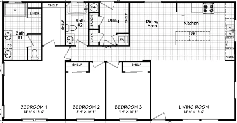
3 bedrooms
2 full bathrooms
1,386 sq. ft.
26' 8" x 52'
Coronado standard features
Construction
36" Craftsman Style Front Door 36" 9-Light Inswing Rear Door Vinyl D/G, Low-E, Tempered Glass Windows T/O Large Gun-Slot Kitchen Window Raised 2-Panel Interior Doors T/O Ventilated Windows - Both Baths (3) Mortised Hinges & Lever Interior Handles Raise 2-Panel Sliding Wardrobe Doors (Model Specific) Laminate Countertops Throughout Straight Hardwood Panel Cabinet Doors Island-Kitchen Full Height Overhead & Pantry Cab-Kitchen Drawers over Doors-Kitchen Drawer Bank-Kitchen & Master Bath 2-Door Overhead Utility W/ Shelf & Pole Trove Homes
Affordable homes at your fingertips.
Get started with Trove Homes
Find, design, and order your next home in a few clicks.
Sign up
3 bedrooms
2 full bathrooms
1,386 sq. ft.
26' 8" x 52'
Lip Molding Under Overhead Cabinets
24" Deep Cabinet over Refrigerator
White Lined Base and Overhead Cabinets
Square Crown Molding - Overhead Cabinets
Nickel Square Cabinet Pulls
Concealed Soft-Close Cabinet Door Hinges
Side-mount Full Extension Drawer Guides
Adjustable Shelves on All Kitchen Overheads
Optional 6" or 12" Side Eaves - 23'4" wide
6" Side Eaves STD - 26'8" wide
Optional 12" Side Eaves - 26'8" wide
6" Side Eaves STD - 30'0" wide
Optional 12" Side Eaves - 30'0" wide
36" Craftsman Style Front Door 36" 9-Light Inswing Rear Door Vinyl D/G, Low-E, Tempered Glass Windows T/O Large Gun-Slot Kitchen Window Raised 2-Panel Interior Doors T/O Ventilated Windows - Both Baths (3) Mortised Hinges & Lever Interior Handles Raise 2-Panel Sliding Wardrobe Doors (Model Specific) Laminate Countertops Throughout Straight Hardwood Panel Cabinet Doors Island-Kitchen Full Height Overhead & Pantry Cab-Kitchen Drawers over Doors-Kitchen Drawer Bank-Kitchen & Master Bath
2-Door Overhead Utility W/ Shelf & Pole Lip Molding Under Overhead Cabinets 24" Deep Cabinet over Refrigerator White Lined Base and Overhead Cabinets Square Crown Molding - Overhead Cabinets Nickel Square Cabinet Pulls Concealed Soft-Close Cabinet Door Hinges Side-mount Full Extension Drawer Guides Adjustable Shelves on All Kitchen Overheads Optional 6" or 12" Side Eaves - 23'4" wide 6" Side Eaves STD - 26'8" wide Optional 12" Side Eaves - 26'8" wide 6" Side Eaves STD - 30'0" wide Optional 12" Side Eaves - 30'0" wide Mechanical
100 Amp Service Interior Panel Box 40 Gallon Gas Water Heater 56 BTU Gas Furnace Plumb/Wire for Washer & Gas Dryer Rocker Switches Throughout Dual USB Recept-Kitchen Shut Off Valves Throughout Toe Kick Registers in Wet Areas
100 Amp Service Interior Panel Box 40 Gallon Gas Water Heater 56 BTU Gas Furnace Plumb/Wire for Washer & Gas Dryer
Rocker Switches Throughout Dual USB Recept-Kitchen Shut Off Valves Throughout Toe Kick Registers in Wet Areas Kitchen
8" Stainless Steel Sink 4"-6" Tile Backsplash Full Height Tile Backsplash-Behind Range Stainless Steel Gas Freestanding Range Stainless Steel Microwave Range Hood Stainless Steel Dishwasher Stainless Steel 21 CF SxS Refer w/Ice and Water Dispenser Faucet w/ Pull out Sprayer-Brushed Nickel Garbage Disposal
8" Stainless Steel Sink 4"-6" Tile Backsplash Full Height Tile Backsplash-Behind Range Stainless Steel Gas Freestanding Range Stainless Steel Microwave Range Hood
Stainless Steel Dishwasher Stainless Steel 21 CF SxS Refer w/Ice and Water Dispenser Faucet w/ Pull out Sprayer-Brushed Nickel Garbage Disposal Interior
Knockdown Ceiling Tape and Texture T/O & Square Corners 2" Faux Wood Blinds T/O (Standard Height) Square 2" Door Casing T/O Square 5" Baseboard T/O Upgrade Carpet Pad Carpet - Shaw "Cape Canaveral" LR Wood Shelves with Rod in Closets 4" LED Can Lights - Kits., Utility, Baths Ceiling Lights - Bedrooms & Living Room 4-LT Caged Chandelier - Dining Room Interior Paint - Spare White (Washable Flat)
Knockdown Ceiling Tape and Texture T/O & Square Corners 2" Faux Wood Blinds T/O (Standard Height) Square 2" Door Casing T/O Square 5" Baseboard T/O Upgrade Carpet Pad
Carpet - Shaw "Cape Canaveral" LR Wood Shelves with Rod in Closets 4" LED Can Lights - Kits., Utility, Baths Ceiling Lights - Bedrooms & Living Room 4-LT Caged Chandelier - Dining Room Interior Paint - Spare White (Washable Flat) Bathroom
60" 1-PC Fiberglass Walk-in Shower w/ Enclosure - Master Bath 60" 1-PC Fiberglass Tub/Shower - Guest Bath Dual Lavys - Master Bath 4"-6" Tile Backsplash Mirrored Medicine Cabinet Porcelain Lavy Bowl Single Lever Faucet & Diverter-Nickel Towel Bar & Tissue Holder-Nickel Handicap Toilet 36" High Vanity - Master Bath 30" High Vanity - Guest Bath (2) Vanity Lights Exhaust Fan Exhaust Fan
60" 1-PC Fiberglass Walk-in Shower w/ Enclosure - Master Bath 60" 1-PC Fiberglass Tub/Shower - Guest Bath Dual Lavys - Master Bath 4"-6" Tile Backsplash Mirrored Medicine Cabinet Porcelain Lavy Bowl Single Lever Faucet & Diverter-Nickel
Towel Bar & Tissue Holder-Nickel Handicap Toilet 36" High Vanity - Master Bath 30" High Vanity - Guest Bath (2) Vanity Lights Exhaust Fan Exhaust Fan Exterior
Insulation: R: 28-11-11 4" LP Window Trim and Corner Trim 9" LP Fascia LP Vertical Siding 9' Sidewalls with Flat Ceiling Non-Grid Transom Windows in LR, DR, Kitchen Roof Pitch 3:12 20Ib. Roof Load 12" Front Overhang (Hitch) Trimline Ventilated Roof System Front Airfoil
Insulation: R: 28-11-11 4" LP Window Trim and Corner Trim 9" LP Fascia LP Vertical Siding 9' Sidewalls with Flat Ceiling Non-Grid Transom Windows in LR, DR, Kitchen
Roof Pitch 3:12 20Ib. Roof Load 12" Front Overhang (Hitch) Trimline Ventilated Roof System Front Airfoil Dealer License #: DL1609773
36" Craftsman Style Front Door 36" 9-Light Inswing Rear Door Vinyl D/G, Low-E, Tempered Glass Windows T/O Large Gun-Slot Kitchen Window Raised 2-Panel Interior Doors T/O Ventilated Windows - Both Baths (3) Mortised Hinges & Lever Interior Handles Raise 2-Panel Sliding Wardrobe Doors (Model Specific) Laminate Countertops Throughout Straight Hardwood Panel Cabinet Doors Island-Kitchen Full Height Overhead & Pantry Cab-Kitchen Drawers over Doors-Kitchen Drawer Bank-Kitchen & Master Bath 2-Door Overhead Utility W/ Shelf & Pole Lip Molding Under Overhead Cabinets 24" Deep Cabinet over Refrigerator White Lined Base and Overhead Cabinets Square Crown Molding - Overhead Cabinets Nickel Square Cabinet Pulls Concealed Soft-Close Cabinet Door Hinges
Side-mount Full Extension Drawer Guides
Adjustable Shelves on All Kitchen Overheads
Optional 6" or 12" Side Eaves - 23'4" wide
6" Side Eaves STD - 26'8" wide
Optional 12" Side Eaves - 26'8" wide
6" Side Eaves STD - 30'0" wide
Optional 12" Side Eaves - 30'0" wide
Insulation: R: 28-11-11
4" LP Window Trim and Corner Trim
9" LP Fascia
LP Vertical Siding
9' Sidewalls with Flat Ceiling
Non-Grid Transom Windows in LR, DR, Kitchen
Roof Pitch 3:12
20Ib. Roof Load
12" Front Overhang (Hitch)
Trimline Ventilated Roof System
Front Airfoil
36" Craftsman Style Front Door 36" 9-Light Inswing Rear Door Vinyl D/G, Low-E, Tempered Glass Windows T/O Large Gun-Slot Kitchen Window Raised 2-Panel Interior Doors T/O Ventilated Windows - Both Baths (3) Mortised Hinges & Lever Interior Handles Raise 2-Panel Sliding Wardrobe Doors (Model Specific) Laminate Countertops Throughout Straight Hardwood Panel Cabinet Doors Island-Kitchen Full Height Overhead & Pantry Cab-Kitchen Drawers over Doors-Kitchen Drawer Bank-Kitchen & Master Bath 2-Door Overhead Utility W/ Shelf & Pole Lip Molding Under Overhead Cabinets 24" Deep Cabinet over Refrigerator White Lined Base and Overhead Cabinets Square Crown Molding - Overhead Cabinets Nickel Square Cabinet Pulls
Concealed Soft-Close Cabinet Door Hinges Side-mount Full Extension Drawer Guides Adjustable Shelves on All Kitchen Overheads Optional 6" or 12" Side Eaves - 23'4" wide 6" Side Eaves STD - 26'8" wide Optional 12" Side Eaves - 26'8" wide 6" Side Eaves STD - 30'0" wide Optional 12" Side Eaves - 30'0" wide Insulation: R: 28-11-11 4" LP Window Trim and Corner Trim 9" LP Fascia LP Vertical Siding 9' Sidewalls with Flat Ceiling Non-Grid Transom Windows in LR, DR, Kitchen Roof Pitch 3:12 20Ib. Roof Load 12" Front Overhang (Hitch) Trimline Ventilated Roof System Front Airfoil 8" Stainless Steel Sink 4"-6" Tile Backsplash Full Height Tile Backsplash-Behind Range Stainless Steel Gas Freestanding Range Stainless Steel Microwave Range Hood Stainless Steel Dishwasher Stainless Steel 21 CF SxS Refer w/Ice and Water Dispenser Faucet w/ Pull out Sprayer-Brushed Nickel Garbage Disposal
8" Stainless Steel Sink 4"-6" Tile Backsplash Full Height Tile Backsplash-Behind Range Stainless Steel Gas Freestanding Range Stainless Steel Microwave Range Hood
Stainless Steel Dishwasher Stainless Steel 21 CF SxS Refer w/Ice and Water Dispenser Faucet w/ Pull out Sprayer-Brushed Nickel Garbage Disposal
60" 1-PC Fiberglass Walk-in Shower w/ Enclosure - Master Bath 60" 1-PC Fiberglass Tub/Shower - Guest Bath Dual Lavys - Master Bath 4"-6" Tile Backsplash Mirrored Medicine Cabinet Porcelain Lavy Bowl Single Lever Faucet & Diverter-Nickel Towel Bar & Tissue Holder-Nickel Handicap Toilet 36" High Vanity - Master Bath 30" High Vanity - Guest Bath (2) Vanity Lights Exhaust Fan Exhaust Fan
60" 1-PC Fiberglass Walk-in Shower w/ Enclosure - Master Bath 60" 1-PC Fiberglass Tub/Shower - Guest Bath Dual Lavys - Master Bath 4"-6" Tile Backsplash Mirrored Medicine Cabinet Porcelain Lavy Bowl Single Lever Faucet & Diverter-Nickel
Towel Bar & Tissue Holder-Nickel Handicap Toilet 36" High Vanity - Master Bath 30" High Vanity - Guest Bath (2) Vanity Lights Exhaust Fan Exhaust Fan
Knockdown Ceiling Tape and Texture T/O & Square Corners 2" Faux Wood Blinds T/O (Standard Height) Square 2" Door Casing T/O Square 5" Baseboard T/O Upgrade Carpet Pad Carpet - Shaw "Cape Canaveral" LR Wood Shelves with Rod in Closets 4" LED Can Lights - Kits., Utility, Baths Ceiling Lights - Bedrooms & Living Room 4-LT Caged Chandelier - Dining Room Interior Paint - Spare White (Washable Flat)
Knockdown Ceiling Tape and Texture T/O & Square Corners 2" Faux Wood Blinds T/O (Standard Height) Square 2" Door Casing T/O Square 5" Baseboard T/O Upgrade Carpet Pad
Carpet - Shaw "Cape Canaveral" LR Wood Shelves with Rod in Closets 4" LED Can Lights - Kits., Utility, Baths Ceiling Lights - Bedrooms & Living Room 4-LT Caged Chandelier - Dining Room Interior Paint - Spare White (Washable Flat)
Images of homes are solely for illustrative purposes and should not be relied upon. Images may not accurately represent the actual condition of a home as constructed, and may contain options which are not standard on all homes.