Sheetrock Thickness: 1/2" High Density (ceiling); 1/2" Standard (walls)
Closet Shelves: Wire shelves location per print.
Tape & Texture Interior Wall Finish: Standard w/square corners throughout.
Interior Wall Paint: Creamy throughout standard.
Ceiling Paint: Creamy
Interior Ceiling to Wall Transition: Caulked and painted.
Coffered Ceiling: N/A
Base Molding: 2-1/4” waterfall lino areas. Optional all other areas.
Interior Doors: White raised 2 panel.
Door Trim: 2 ¼” Waterfall
Door Stops: None
Door Handles: Round brushed nickel
Wardrobe Doors: White raised 2 panel
Cabinet Type: Knotty Alder raised panel doors. Knotty Alder face frame and side panels with hidden hinges. All cabinets all have light maple color lined interiors.
Kitchen Overhead Cabinets: 42” tall with one adjustable shelf.
Cabinet Hardware: Brushed nickel knobs on cabinet doors and drawers.
Range Hood Overhead Cabinet: Standard
Refer Overhead: Overhead cabinet
Washer/Dryer Overhead: Optional
Kitchen Drawers: Three-Drawer bank, drawers over doors optional.
Cabinet Crown Molding: Optional
Bathroom Drawer Bank: Optional. Not all baths will have room for drawers.
Backsplash - Kitchen and Baths: 4” Laminate
Bar Back Finish: Matches cabinet
Countertop Self Edge: Laminate
Bathroom Lavatory Cabinet: Full door - no cubbies. Med cabinet optional.
Sheetrock Thickness: 1/2" High Density (ceiling); 1/2" Standard (walls)
Closet Shelves: Wire shelves location per print.
Tape & Texture Interior Wall Finish: Standard w/square corners throughout.
Interior Wall Paint: Creamy throughout standard.
Ceiling Paint: Creamy
Interior Ceiling to Wall Transition: Caulked and painted.
Coffered Ceiling: N/A
Base Molding: 2-1/4” waterfall lino areas. Optional all other areas.
Interior Doors: White raised 2 panel.
Door Trim: 2 ¼” Waterfall
Door Stops: None
Door Handles: Round brushed nickel
Wardrobe Doors: White raised 2 panel
Cabinet Type: Knotty Alder raised panel doors. Knotty Alder face frame and side panels with hidden hinges. All cabinets all have light maple color lined interiors.
Kitchen Overhead Cabinets: 42” tall with one adjustable shelf.
Cabinet Hardware: Brushed nickel knobs on cabinet doors and drawers.
Range Hood Overhead Cabinet: Standard
Mechanical
Bedroom Lighting: Recessed LED can light
Dining Room Lighting: Recessed LED can light per print.
Kitchen Lighting: Recessed LED can lights per print.
Exterior Lights: Black Coach lights - both front and back doors.
Bathroom Lighting: Bath 1: recessed LED can lights. Guest: recessed LED can lights. Cosmetic lights are optional.
Wire & Brace For Ceiling Fan(s): Optional
TV/Phone Boxes - Rough In With Raceways - Not Wired: Optional
Electrical Service Main Panel: 200 AMP
Master Bath Tub/Shower: 60” Fiberglass shower with shower head & enclosure.
Guest Bath Tub/Shower: 60" fiberglass tub/shower
Bath Sinks & Toilets: China and elongated toilet
Bath Sink Faucets & Tub/Shower Faucets: Single lever brushed nickel on sinks, tub and / or shower.
Bathroom Mirrors: 24” x 42” over sinks.
Towel Bar/Tissue Holders: Optional
Kitchen Sink: 8" deep stainless steel
Kitchen Faucet: Single Lever with pull-out side sprayer
Plumb for Washing Machine: Standard
Wire for Clothes Dryer: Standard
Shut-Off Valves: Individual standard. Whole House optional.
Exterior Water Faucet: Optional in pre-determined locations.
Heating System: Electric forced air furnace and ducts. Standard digital set-back thermostat.
Water Heater: 50 Gallon
Bedroom Lighting: Recessed LED can light
Dining Room Lighting: Recessed LED can light per print.
Kitchen Lighting: Recessed LED can lights per print.
Exterior Lights: Black Coach lights - both front and back doors.
Bathroom Lighting: Bath 1: recessed LED can lights. Guest: recessed LED can lights. Cosmetic lights are optional.
Wire & Brace For Ceiling Fan(s): Optional
TV/Phone Boxes - Rough In With Raceways - Not Wired: Optional
Electrical Service Main Panel: 200 AMP
Master Bath Tub/Shower: 60” Fiberglass shower with shower head & enclosure.
Guest Bath Tub/Shower: 60" fiberglass tub/shower
Bath Sinks & Toilets: China and elongated toilet
Bath Sink Faucets & Tub/Shower Faucets: Single lever brushed nickel on sinks, tub and / or shower.
Bathroom Mirrors: 24” x 42” over sinks.
Towel Bar/Tissue Holders: Optional
Kitchen Sink: 8" deep stainless steel
Kitchen Faucet: Single Lever with pull-out side sprayer
Plumb for Washing Machine: Standard
Wire for Clothes Dryer: Standard
Other
Appliances Color: Stainless Steel
Refrigerator: 18 Cubic Foot Frost Free. Plumb for ice/water optional.
Range: 30" Electric range with window and clock.
Dishwasher: Optional
Microwave: Optional
Range Hood: 30" Stainless Steel
Fireplace: Not Applicable
Appliances Color: Stainless Steel
Refrigerator: 18 Cubic Foot Frost Free. Plumb for ice/water optional.
Linoleum: Kitchen, dining, baths, and utility. Hallway and all bedroom closets are lino.
Main Entry Floor Covering: Lino Optional
Mini Blinds: Optional
Shut-Off Valves: Individual standard. Whole House optional.
Exterior Water Faucet: Optional in pre-determined locations.
Heating System: Electric forced air furnace and ducts. Standard digital set-back thermostat.
Water Heater: 50 Gallon
Floor Joists: 2 x 6 16” O.C.
Floor Decking: 4’ x 8’ x 19/32” tongue and groove OSB
Exterior Siding Type: LP SmartSide Panel
Exterior Window Trim: 4" Trim all sides
Dormers & Exterior Trim: Dormer optional
Sidewalls: 2 X 6 at 16" OC / 96” Height- Flat Ceiling.
Shingles: Architectural with Limited Lifetime warranty.
Standard Roof Load: 20 Pound w/Trusses 24" OC
Exterior Entry Doors: Front-36" Inswing with deadbolt knocker and peephole, Rear 32” Inswing with deadbolt
Eaves & Overhang: 6” Sidewalls and end walls. 12" on 24' wide models. Screens vented.
Roof Pitch: 3/12 DW, 4/12 SW
Set Back Frame (Foundation Ready): Optional
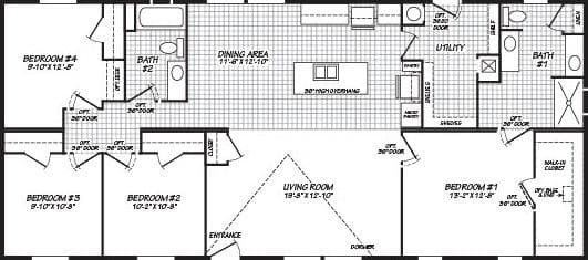
Images of homes are solely for illustrative purposes and should not be relied upon. Images may not accurately represent the actual condition of a home as constructed, and may contain options which are not standard on all homes.