Insulation: Ceilings/Walls/Floors: R-40 Ceiling, R-21 Walls, R-33 Floors. Energy Star Standard
Window Type: Low-E vinyl windows with argon gas
Floor Joists: 2 x 6 16” O.C.
Floor Decking: 4’ x 8’ x 19/32” tongue and groove OSB
Exterior Siding Type: LP SmartSide Panel
Exterior Window Trim: 4" Trim all sides
Dormers & Exterior Trim: Dormer standard (see print for size and location). Front door side install trim piece (4") 1/2 way up. Above the trim piece is accent color, below trim piece is body color. Paint the gable Accent color. Trim piece trim color.
Sidewalls: 2 X 6 at 16" OC / 102” Height - Flat Ceiling
Shingles: Architectural with Limited Lifetime warranty.
Standard Roof Load: 30 pound with trusses 24" on center.
Enter your address or APN to check if this home fits on your property
Enter your property street address or APN
Virtual Tour
Exterior & Construction
Insulation: Ceilings/Walls/Floors: R-40 Ceiling, R-21 Walls, R-33 Floors. Energy Star Standard
Window Type: Low-E vinyl windows with argon gas
Floor Joists: 2 x 6 16” O.C.
Floor Decking: 4’ x 8’ x 19/32” tongue and groove OSB
Exterior Siding Type: LP SmartSide Panel
Exterior Window Trim: 4" Trim all sides
Dormers & Exterior Trim: Dormer standard (see print for size and location). Front door side install trim piece (4") 1/2 way up. Above the trim piece is accent color, below trim piece is body color. Paint the gable Accent color. Trim piece trim color.
Sidewalls: 2 X 6 at 16" OC / 102” Height - Flat Ceiling
Shingles: Architectural with Limited Lifetime warranty.
Standard Roof Load: 30 pound with trusses 24" on center.
Exterior Entry Doors: Front-36" Inswing with deadbolt knocker and peephole, Rear 32” Inswing with deadbolt
Eaves & Overhang: 6” Sidewalls and end walls. 12" on 24' wide models. Screens vented.
Exterior Entry Doors: Front-36" Inswing with deadbolt knocker and peephole, Rear 32” Inswing with deadbolt
Eaves & Overhang: 6” Sidewalls and end walls. 12" on 24' wide models. Screens vented.
Roof Pitch: 3/12
Set Back Frame (Foundation Ready): Optional
Insulation: Ceilings/Walls/Floors: R-40 Ceiling, R-21 Walls, R-33 Floors. Energy Star Standard
Window Type: Low-E vinyl windows with argon gas
Floor Joists: 2 x 6 16” O.C.
Floor Decking: 4’ x 8’ x 19/32” tongue and groove OSB
Exterior Siding Type: LP SmartSide Panel
Exterior Window Trim: 4" Trim all sides
Dormers & Exterior Trim: Dormer standard (see print for size and location). Front door side install trim piece (4") 1/2 way up. Above the trim piece is accent color, below trim piece is body color. Paint the gable Accent color. Trim piece trim color.
Sidewalls: 2 X 6 at 16" OC / 102” Height - Flat Ceiling
Shingles: Architectural with Limited Lifetime warranty.
Standard Roof Load: 30 pound with trusses 24" on center.
Exterior Entry Doors: Front-36" Inswing with deadbolt knocker and peephole, Rear 32” Inswing with deadbolt
Eaves & Overhang: 6” Sidewalls and end walls. 12" on 24' wide models. Screens vented.
Linoleum: Kitchen, baths, entry and utility. Dining room is lino in some plans and carpet in others. Hall and closets vary per print.
Main Entry Floor Covering: Lino
Cabinet Type: Knotty Alder raised panel doors. Knotty Alder face frame and side panels with hidden hinges. All cabinets all have light maple color lined interiors.
Kitchen Overhead Cabinets: 42” tall with 1 adjustable shelf.
Cabinet Hardware: Brushed nickel knobs on cabinet doors and drawers.
Kitchen Drawers: Two drawer banks standard, one of them in island. See print for locations. All drawer banks are 3 drawers with larger drawers on the bottom.
Cabinet Crown Molding: Yes
Bathroom Drawer Bank: Three bank drawers standard in Bath 1 (note some models may not be eligible due to space limits.)
Backsplash - Kitchen and Baths: 4” Laminate
Bar Back Finish: Matches cabinet
Countertop Self Edge: Laminate
Bathroom Lavy Cabinet: Full door - no cubbies. Med cabinet standard.
Linoleum: Kitchen, baths, entry and utility. Dining room is lino in some plans and carpet in others. Hall and closets vary per print.
Main Entry Floor Covering: Lino
Mechanical
Bedroom Lighting: Recessed LED can light
Dining Room Lighting: Two recessed LED can lights.
Kitchen Lighting: Recessed LED can lights per print. Pair of pendant lights over island (if applicable).
Exterior Lights: Black Coach lights - both front and back doors.
Bathroom Lighting: Bath 1: Recessed LED can lights. Location and quantity per print. There will be a recessed can light over the standard sink and over an added optional second sink. Guest Bath: recessed LED can light. Cosmetic lights are optional in both baths.
Wire & Brace For Ceiling Fan(s):Standard in Living Room and Family Room (if applicable).
TV/Phone Boxes - Rough In With Raceways - Not Wired:Optional
Bath Sink Faucets & Tub/Shower Faucets: Single lever brushed nickel on sinks, tub and/or shower.
Bathroom Mirrors: Bath 1: 24"x42" over both sink and optional sink locations with trim on all four edges to match cabs. Guest Bath: 24"x42" no trim.
Towel Bar/Tissue Holders: Standard Both Baths
Kitchen Sink: Stainless Steel single bowl farmhouse sink.
Kitchen Faucet: High-Arch pull out faucet
Plumb for Washing Machine: Standard
Wire for Clothes Dryer: Standard
Shut-Off Valves: Individual and Whole House standard.
Exterior Water Faucet: Optional in pre-determined locations.
Heating System: Electric forced air furnace and ducts. Standard digital set back thermostat.
Water Heater: 50 Gallon
Bedroom Lighting: Recessed LED can light
Dining Room Lighting: Two recessed LED can lights.
Kitchen Lighting: Recessed LED can lights per print. Pair of pendant lights over island (if applicable).
Exterior Lights: Black Coach lights - both front and back doors.
Bathroom Lighting: Bath 1: Recessed LED can lights. Location and quantity per print. There will be a recessed can light over the standard sink and over an added optional second sink. Guest Bath: recessed LED can light. Cosmetic lights are optional in both baths.
Wire & Brace For Ceiling Fan(s):Standard in Living Room and Family Room (if applicable).
TV/Phone Boxes - Rough In With Raceways - Not Wired:Optional
Cabinet Type: Knotty Alder raised panel doors. Knotty Alder face frame and side panels with hidden hinges. All cabinets all have light maple color lined interiors.
Kitchen Overhead Cabinets: 42” tall with 1 adjustable shelf.
Cabinet Hardware: Brushed nickel knobs on cabinet doors and drawers.
Kitchen Drawers: Two drawer banks standard, one of them in island. See print for locations. All drawer banks are 3 drawers with larger drawers on the bottom.
Cabinet Crown Molding: Yes
Bathroom Drawer Bank: Three bank drawers standard in Bath 1 (note some models may not be eligible due to space limits.)
Backsplash - Kitchen and Baths: 4” Laminate
Bar Back Finish: Matches cabinet
Countertop Self Edge: Laminate
Bathroom Lavy Cabinet: Full door - no cubbies. Med cabinet standard.
Mini Blinds: Optional
Towel Bar/Tissue Holders: Standard Both Baths
Kitchen Sink: Stainless Steel single bowl farmhouse sink.
Kitchen Faucet: High-Arch pull out faucet
Plumb for Washing Machine: Standard
Wire for Clothes Dryer: Standard
Shut-Off Valves: Individual and Whole House standard.
Exterior Water Faucet: Optional in pre-determined locations.
Heating System: Electric forced air furnace and ducts. Standard digital set back thermostat.
Water Heater: 50 Gallon
Insulation: Ceilings/Walls/Floors: R-40 Ceiling, R-21 Walls, R-33 Floors. Energy Star Standard
Window Type: Low-E vinyl windows with argon gas
Floor Joists: 2 x 6 16” O.C.
Floor Decking: 4’ x 8’ x 19/32” tongue and groove OSB
Exterior Siding Type: LP SmartSide Panel
Exterior Window Trim: 4" Trim all sides
Dormers & Exterior Trim: Dormer standard (see print for size and location). Front door side install trim piece (4") 1/2 way up. Above the trim piece is accent color, below trim piece is body color. Paint the gable Accent color. Trim piece trim color.
Sidewalls: 2 X 6 at 16" OC / 102” Height - Flat Ceiling
Shingles: Architectural with Limited Lifetime warranty.
Standard Roof Load: 30 pound with trusses 24" on center.
Exterior Entry Doors: Front-36" Inswing with deadbolt knocker and peephole, Rear 32” Inswing with deadbolt
Eaves & Overhang: 6” Sidewalls and end walls. 12" on 24' wide models. Screens vented.
Linoleum: Kitchen, baths, entry and utility. Dining room is lino in some plans and carpet in others. Hall and closets vary per print.
Main Entry Floor Covering: Lino
Cabinet Type: Knotty Alder raised panel doors. Knotty Alder face frame and side panels with hidden hinges. All cabinets all have light maple color lined interiors.
Kitchen Overhead Cabinets: 42” tall with 1 adjustable shelf.
Cabinet Hardware: Brushed nickel knobs on cabinet doors and drawers.
Kitchen Drawers: Two drawer banks standard, one of them in island. See print for locations. All drawer banks are 3 drawers with larger drawers on the bottom.
Cabinet Crown Molding: Yes
Bathroom Drawer Bank: Three bank drawers standard in Bath 1 (note some models may not be eligible due to space limits.)
Backsplash - Kitchen and Baths: 4” Laminate
Bar Back Finish: Matches cabinet
Countertop Self Edge: Laminate
Bathroom Lavy Cabinet: Full door - no cubbies. Med cabinet standard.
Linoleum: Kitchen, baths, entry and utility. Dining room is lino in some plans and carpet in others. Hall and closets vary per print.
Main Entry Floor Covering: Lino
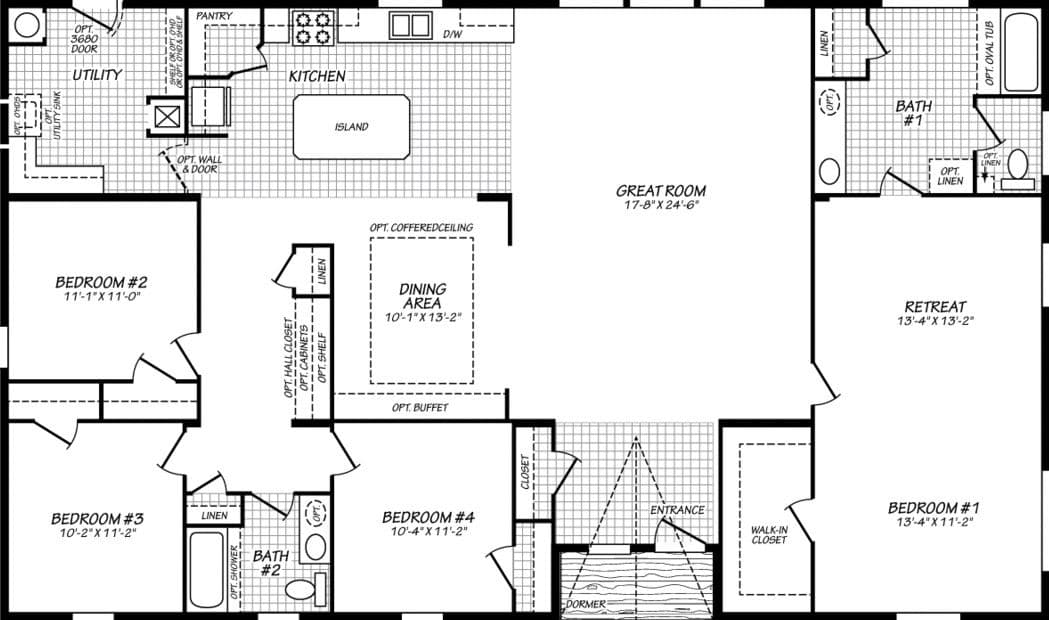
Images of homes are solely for illustrative purposes and should not be relied upon. Images may not accurately represent the actual condition of a home as constructed, and may contain options which are not standard on all homes.
Cabinet Type: Knotty Alder raised panel doors. Knotty Alder face frame and side panels with hidden hinges. All cabinets all have light maple color lined interiors.
Kitchen Overhead Cabinets: 42” tall with 1 adjustable shelf.
Cabinet Hardware: Brushed nickel knobs on cabinet doors and drawers.
Kitchen Drawers: Two drawer banks standard, one of them in island. See print for locations. All drawer banks are 3 drawers with larger drawers on the bottom.
Cabinet Crown Molding: Yes
Bathroom Drawer Bank: Three bank drawers standard in Bath 1 (note some models may not be eligible due to space limits.)
Backsplash - Kitchen and Baths: 4” Laminate
Bar Back Finish: Matches cabinet
Countertop Self Edge: Laminate
Bathroom Lavy Cabinet: Full door - no cubbies. Med cabinet standard.