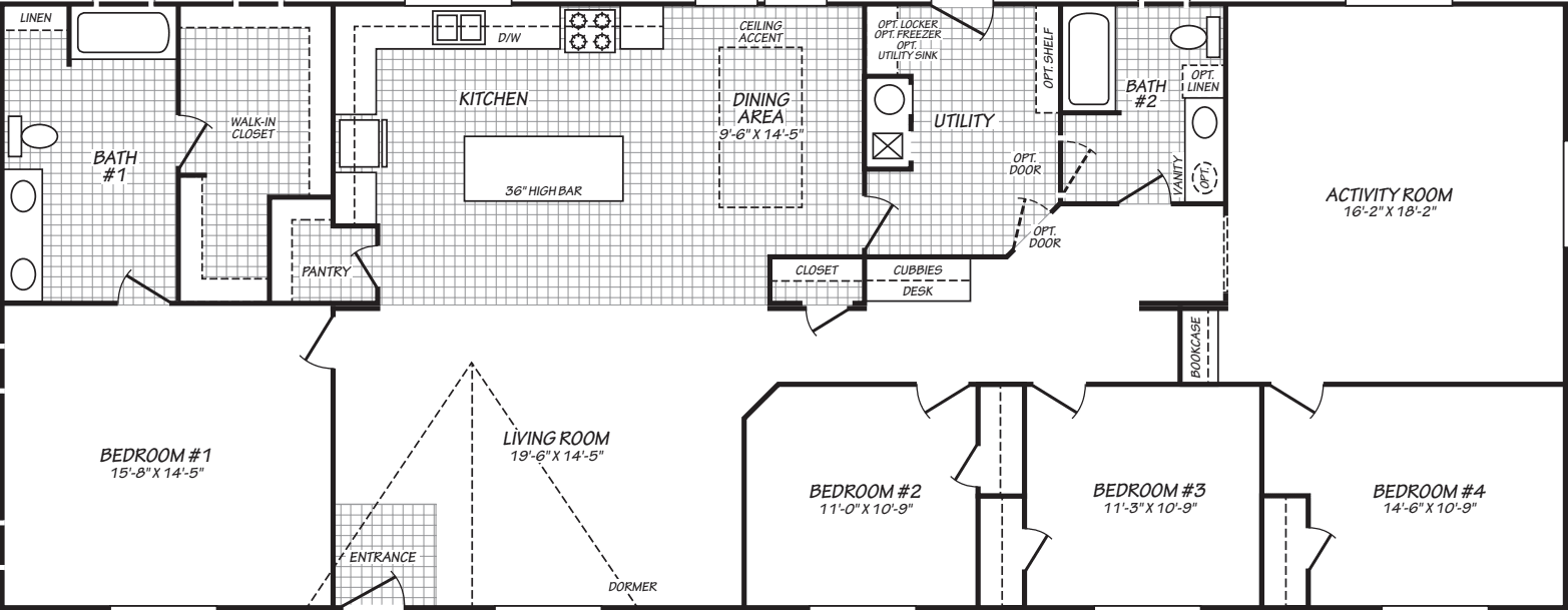
Homes | The Gold Fork (30764N)