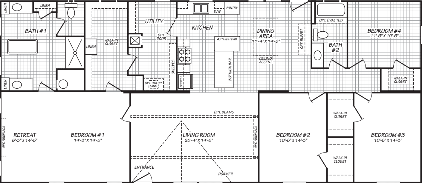
Homes | The Shoshone (30684E)