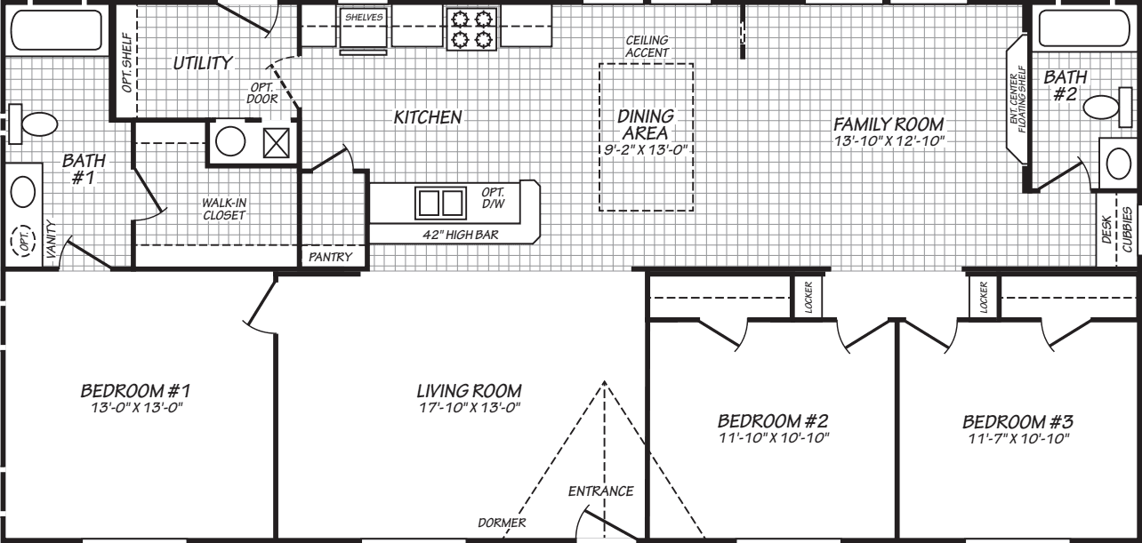
Homes | The Hauser (28563E)