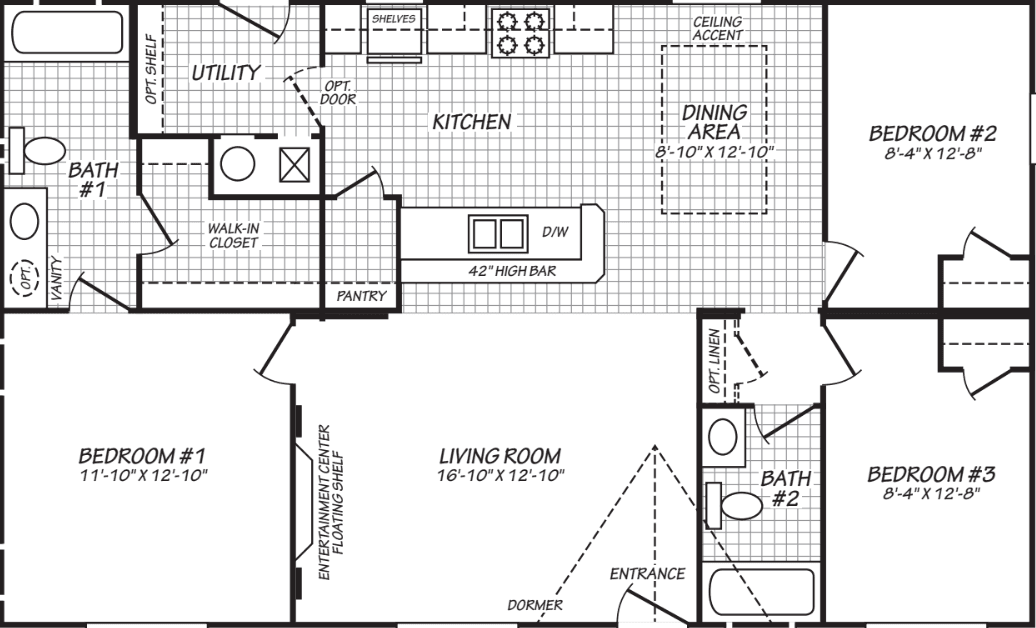
Homes | The Hayden (28443E)