Homes | The Sawtooth (28764T)
Property map Enter your address or APN to check if this home fits on your property
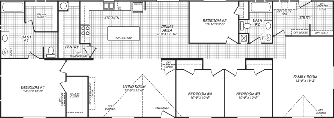
The Sawtooth (28764T) Continue
4 bedrooms
2 full bathrooms
2,026 sq. ft.
26' 8" x 76'
Broadmore standard features
Exterior
LP Smart Panel exterior siding 4” trim all windows Painted shutters FDS & Hitch End (multi section) Painted shutters Hitch End only (single section) 6” Eave on all sides for multi section No rear end wall eave on singlewides
LP Smart Panel exterior siding 4” trim all windows Painted shutters FDS & Hitch End (multi section)
Painted shutters Hitch End only (single section) 6” Eave on all sides for multi section No rear end wall eave on singlewides Trove Homes
Affordable homes at your fingertips.
Get started with Trove Homes
Find, design, and order your next home in a few clicks.
Sign up
4 bedrooms
2 full bathrooms
2,026 sq. ft.
26' 8" x 76'
1 Year structural warranty
(see Homeowner’s Guide for complete details)
30 lb. Roof load
8’ flat ceilings
Energy Star 2.0 compliant and certified
2” x 6” exterior walls 16” o.c.
19/32” T&G OSB floor decking
3:12 Roof pitch
Class A fire rated limited lifetime architectural shingles
Removable hitches
Zone III Thermal Specifications:
R-40 roof, R-21 walls, R-33 floor
1 Year structural warranty (see Homeowner’s Guide for complete details) 30 lb. Roof load 8’ flat ceilings Energy Star 2.0 compliant and certified 2” x 6” exterior walls 16” o.c.
19/32” T&G OSB floor decking 3:12 Roof pitch Class A fire rated limited lifetime architectural shingles Removable hitches Zone III Thermal Specifications: R-40 roof, R-21 walls, R-33 floor Mechanical
200 Amp all-electric service (gas optional) Master water shut-off valve Shut-off valve on toilets 30 gallon Energy Star rated electric water heater Electric furnace LED can lights T/O Wire & brace for ceiling fan in living room GFI patio plug near rear door Porch lights at all exterior doors 32 watt whole house fan Smart technology thermostat
200 Amp all-electric service (gas optional) Master water shut-off valve Shut-off valve on toilets 30 gallon Energy Star rated electric water heater Electric furnace LED can lights T/O
Wire & brace for ceiling fan in living room GFI patio plug near rear door Porch lights at all exterior doors 32 watt whole house fan Smart technology thermostat Interior
Factory select Take Away carpet – 15 oz. 7/16” – 7# carpet pad (Carpet & pad shipped loose on multi section) Factory select vinyl flooring with baseboard in wet areas per plan White textured ceilings (orange peel) Factory select vinyl/paper covered wall panels T/O Wire closet shelves White window & door trim No entry lino 36” In-swing front door w/deadbolt 36” In-swing rear door w/deadbolt, per plan Vinyl clad thermo-pane windows with Low “E” 2-panel white interior doors Residential style mortise door hinges (3) Stick-on door stops Hardwood cabinet doors and face frame Cabinet doors & drawers w/knobs 30” overhead kitchen cabinets Crown molding on kitchen cabinets No shelf above washer / dryer Shelf & white bead board or cabinet-matched luan above refrigerator White bead board or cabinet-matched luan accent above kitchen overheads Overhead cabinets w/fixed shelf and finished sides Unlined base & overhead cabinets w/MDF fixed shelf Wood ply drawer sides w/metal drawer guides
Factory select Take Away carpet – 15 oz. 7/16” – 7# carpet pad (Carpet & pad shipped loose on multi section) Factory select vinyl flooring with baseboard in wet areas per plan White textured ceilings (orange peel) Factory select vinyl/paper covered wall panels T/O Wire closet shelves White window & door trim No entry lino 36” In-swing front door w/deadbolt 36” In-swing rear door w/deadbolt, per plan Vinyl clad thermo-pane windows with Low “E” 2-panel white interior doors
Residential style mortise door hinges (3) Stick-on door stops Hardwood cabinet doors and face frame Cabinet doors & drawers w/knobs 30” overhead kitchen cabinets Crown molding on kitchen cabinets No shelf above washer / dryer Shelf & white bead board or cabinet-matched luan above refrigerator Kitchen
18 cu. ft. stainless steel Whirlpool frost free refrigerator 30” stainless steel Whirlpool free standing electric range, w/clock, window & timer 30” power range hood with light 7” double cell stainless steel sink Dual handle chrome faucet Bank of drawers Laminate backsplash
18 cu. ft. stainless steel Whirlpool frost free refrigerator 30” stainless steel Whirlpool free standing electric range, w/clock, window & timer 30” power range hood with light
7” double cell stainless steel sink Dual handle chrome faucet Bank of drawers Laminate backsplash Bathroom
60” 3 pc. ABS tub/shower per plan Acrylic sink w/dual handle faucets Elongated commode Exhaust fan Framed bathroom mirrors 36” height lavy cabinet Towel bar & tissue holder Laminate backsplash 60” 3 pc. ABS tub/shower Acrylic sink w/dual handle faucets Elongated commode Exhaust fan Framed bathroom mirrors 36” height lavy cabinet Towel bar & tissue holder Laminate backsplash
60” 3 pc. ABS tub/shower per plan Acrylic sink w/dual handle faucets Elongated commode Exhaust fan Framed bathroom mirrors 36” height lavy cabinet Towel bar & tissue holder Laminate backsplash
60” 3 pc. ABS tub/shower Acrylic sink w/dual handle faucets Elongated commode Exhaust fan Framed bathroom mirrors 36” height lavy cabinet Towel bar & tissue holder Laminate backsplash Dealer License #: DL1609773
LP Smart Panel exterior siding 4” trim all windows Painted shutters FDS & Hitch End (multi section) Painted shutters Hitch End only (single section) 6” Eave on all sides for multi section No rear end wall eave on singlewides 1 Year structural warranty (see Homeowner’s Guide for complete details) 30 lb. Roof load 8’ flat ceilings Energy Star 2.0 compliant and certified 2” x 6” exterior walls 16” o.c. 19/32” T&G OSB floor decking 3:12 Roof pitch Class A fire rated limited lifetime architectural shingles Removable hitches Zone III Thermal Specifications: R-40 roof, R-21 walls, R-33 floor
White bead board or cabinet-matched luan accent
above kitchen overheads
Overhead cabinets w/fixed shelf and finished sides
Unlined base & overhead cabinets w/MDF fixed shelf
Wood ply drawer sides w/metal drawer guides
Painted shutters Hitch End only (single section)
6” Eave on all sides for multi section
No rear end wall eave on singlewides
1 Year structural warranty
(see Homeowner’s Guide for complete details)
30 lb. Roof load
8’ flat ceilings Energy Star 2.0 compliant and certified 2” x 6” exterior walls 16” o.c. 19/32” T&G OSB floor decking 3:12 Roof pitch Class A fire rated limited lifetime architectural shingles Removable hitches Zone III Thermal Specifications: R-40 roof, R-21 walls, R-33 floor
Images of homes are solely for illustrative purposes and should not be relied upon. Images may not accurately represent the actual condition of a home as constructed, and may contain options which are not standard on all homes.