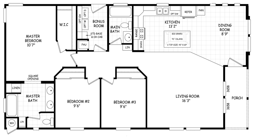
Homes | Sedona Ridge 28523A
Property map Enter your address or APN to check if this home fits on your property
Sedona Ridge 28523A Continue
3 bedrooms
2 full bathrooms
1,386 sq. ft.
26' 8" x 52'
Sedona Ridge standard features
Construction
Solid I-Beam Frame Construction With Corrosion Resistant Undercoating Vapor Barrier Between Frame System and Subfloor Sealed Floor Duct System and Water Lines, Installed Inside R-22 Rated Fiberglass Blankets Under Subfloor 5/8 Inch Floor Decking 2” x 6” Subfloor Construction With Joists Spaced 16” On Center Shut-Off Valves On All Water Fixtures 2” x 4” Exterior Wall Construction With Studs Spaced 16” On Center and R-11 Rated Fiberglass Insulation 90” Exterior Sidewall Height 100 Amp Electric Service With Copper Wiring and Interior Panel Box Forced Air Gas Auto Ignition Furnace and Air Exchange System 40 Gallon Electric Water Heater Trove Homes
Affordable homes at your fingertips.
Get started with Trove Homes
Find, design, and order your next home in a few clicks.
Sign up
3 bedrooms
2 full bathrooms
1,386 sq. ft.
26' 8" x 52'
R-25 Rated Blown Roof Insulation
OSB Roof Decking With Class A Rated Shingles and Underlayment
Solid I-Beam Frame Construction With Corrosion Resistant Undercoating Vapor Barrier Between Frame System and Subfloor Sealed Floor Duct System and Water Lines, Installed Inside R-22 Rated Fiberglass Blankets Under Subfloor 5/8 Inch Floor Decking 2” x 6” Subfloor Construction With Joists Spaced 16” On Center Shut-Off Valves On All Water Fixtures 2” x 4” Exterior Wall Construction With Studs Spaced 16” On Center and R-11 Rated Fiberglass Insulation
90” Exterior Sidewall Height 100 Amp Electric Service With Copper Wiring and Interior Panel Box Forced Air Gas Auto Ignition Furnace and Air Exchange System 40 Gallon Electric Water Heater R-25 Rated Blown Roof Insulation OSB Roof Decking With Class A Rated Shingles and Underlayment Exterior
White semi-gloss interior paint Cement Siding With Hand-Painted Finish Attractive Elevation Per Plan Large White Vinyl Framed Dual-Paned Windows With Locks Bath Windows – Per Plan 36” Residential Insulated Front Door With Deadbolt 36” Residential 9-Lite Rear Door With Deadbolt Exterior Lights At Front and Rear Doors 6” Roof Eaves On All Side Walls, 12” Front & Rear Overhangs (1) Exterior GFCI Electric Outlet
White semi-gloss interior paint Cement Siding With Hand-Painted Finish Attractive Elevation Per Plan Large White Vinyl Framed Dual-Paned Windows With Locks Bath Windows – Per Plan
36” Residential Insulated Front Door With Deadbolt 36” Residential 9-Lite Rear Door With Deadbolt Exterior Lights At Front and Rear Doors 6” Roof Eaves On All Side Walls, 12” Front & Rear Overhangs (1) Exterior GFCI Electric Outlet Interior
Linoleum Hard-Surface Floor Covering, Including Entryway Durable Cut Pile Carpet Vaulted Ceilings Throughout Entire Home With Knockdown Textured Finish Tape and Textured Interior Walls Throughout Home Residential Raided Panel Interior Passage Doors, Mortised With 150Lb Hinges & Lever Handles 5/8” Thick Interior Door Jambs With Profiled Door Casing Drapery Valances With Aluminum Mini Blinds Ventilated Shelving In Wardrobes and Pantries Decorator Style Electrical Receptacles and Silent Rocker Switches Dining Room Chandelier, Bedroom Ceiling Lights and Bath Vanity Lights Ceiling Fan Ready In Living Room and Master Bedroom
Linoleum Hard-Surface Floor Covering, Including Entryway Durable Cut Pile Carpet Vaulted Ceilings Throughout Entire Home With Knockdown Textured Finish Tape and Textured Interior Walls Throughout Home Residential Raided Panel Interior Passage Doors, Mortised With 150Lb Hinges & Lever Handles 5/8” Thick Interior Door Jambs With Profiled Door Casing
Drapery Valances With Aluminum Mini Blinds Ventilated Shelving In Wardrobes and Pantries Decorator Style Electrical Receptacles and Silent Rocker Switches Dining Room Chandelier, Bedroom Ceiling Lights and Bath Vanity Lights Ceiling Fan Ready In Living Room and Master Bedroom Kitchen
Custom Cabinet Construction With 3/4” Thick Face Frames 31” Tall Kitchen City-Scape Overhead Cabinets With Finished Interiors, Adjustable Shelves and Large Crown Cabinet Moulding Hardwood Cabinet Doors With Concealed, Adjustable Hinges (Moonlite & Ebusu Only) Furniture Style Island – Per Plan High-Pressure Laminate Countertops with Crescent Edge 7” Deep Stainless Steel Kitchen Sink 16 Cubic Foot Double-Door, Frost-Free Refrigerator 30” Free-Standing Gas Range Utility Shelf Over Washer and Dryer Area In Bonus Room
Custom Cabinet Construction With 3/4” Thick Face Frames 31” Tall Kitchen City-Scape Overhead Cabinets With Finished Interiors, Adjustable Shelves and Large Crown Cabinet Moulding Hardwood Cabinet Doors With Concealed, Adjustable Hinges (Moonlite & Ebusu Only) Furniture Style Island – Per Plan High-Pressure Laminate Countertops with Crescent Edge
7” Deep Stainless Steel Kitchen Sink 16 Cubic Foot Double-Door, Frost-Free Refrigerator 30” Free-Standing Gas Range Utility Shelf Over Washer and Dryer Area In Bonus Room Bathroom
Exhaust Fans In Baths Porcelain Bath Sinks 36” Tall Master Bath Lavy 1 Piece Fiberglass Tub/Shower Combinations In Baths Water Saver Commodes
Exhaust Fans In Baths Porcelain Bath Sinks 36” Tall Master Bath Lavy
1 Piece Fiberglass Tub/Shower Combinations In Baths Water Saver Commodes Dealer License #: DL1609773
Solid I-Beam Frame Construction With Corrosion Resistant Undercoating Vapor Barrier Between Frame System and Subfloor Sealed Floor Duct System and Water Lines, Installed Inside R-22 Rated Fiberglass Blankets Under Subfloor 5/8 Inch Floor Decking 2” x 6” Subfloor Construction With Joists Spaced 16” On Center Shut-Off Valves On All Water Fixtures 2” x 4” Exterior Wall Construction With Studs Spaced 16” On Center and R-11 Rated Fiberglass Insulation 90” Exterior Sidewall Height 100 Amp Electric Service With Copper Wiring and Interior Panel Box Forced Air Gas Auto Ignition Furnace and Air Exchange System 40 Gallon Electric Water Heater R-25 Rated Blown Roof Insulation OSB Roof Decking With Class A Rated Shingles and Underlayment White semi-gloss interior paint Cement Siding With Hand-Painted Finish Attractive Elevation Per Plan Large White Vinyl Framed Dual-Paned Windows With Locks
Bath Windows – Per Plan
36” Residential Insulated Front Door With Deadbolt
36” Residential 9-Lite Rear Door With Deadbolt
Exterior Lights At Front and Rear Doors
6” Roof Eaves On All Side Walls, 12” Front & Rear Overhangs
(1) Exterior GFCI Electric Outlet
Solid I-Beam Frame Construction With Corrosion Resistant Undercoating Vapor Barrier Between Frame System and Subfloor Sealed Floor Duct System and Water Lines, Installed Inside R-22 Rated Fiberglass Blankets Under Subfloor 5/8 Inch Floor Decking 2” x 6” Subfloor Construction With Joists Spaced 16” On Center Shut-Off Valves On All Water Fixtures 2” x 4” Exterior Wall Construction With Studs Spaced 16” On Center and R-11 Rated Fiberglass Insulation 90” Exterior Sidewall Height 100 Amp Electric Service With Copper Wiring and Interior Panel Box Forced Air Gas Auto Ignition Furnace and Air Exchange System 40 Gallon Electric Water Heater R-25 Rated Blown Roof Insulation
OSB Roof Decking With Class A Rated Shingles and Underlayment White semi-gloss interior paint Cement Siding With Hand-Painted Finish Attractive Elevation Per Plan Large White Vinyl Framed Dual-Paned Windows With Locks Bath Windows – Per Plan 36” Residential Insulated Front Door With Deadbolt 36” Residential 9-Lite Rear Door With Deadbolt Exterior Lights At Front and Rear Doors 6” Roof Eaves On All Side Walls, 12” Front & Rear Overhangs (1) Exterior GFCI Electric Outlet Custom Cabinet Construction With 3/4” Thick Face Frames 31” Tall Kitchen City-Scape Overhead Cabinets With Finished Interiors, Adjustable Shelves and Large Crown Cabinet Moulding Hardwood Cabinet Doors With Concealed, Adjustable Hinges (Moonlite & Ebusu Only) Furniture Style Island – Per Plan High-Pressure Laminate Countertops with Crescent Edge 7” Deep Stainless Steel Kitchen Sink 16 Cubic Foot Double-Door, Frost-Free Refrigerator 30” Free-Standing Gas Range Utility Shelf Over Washer and Dryer Area In Bonus Room
Custom Cabinet Construction With 3/4” Thick Face Frames 31” Tall Kitchen City-Scape Overhead Cabinets With Finished Interiors, Adjustable Shelves and Large Crown Cabinet Moulding Hardwood Cabinet Doors With Concealed, Adjustable Hinges (Moonlite & Ebusu Only) Furniture Style Island – Per Plan High-Pressure Laminate Countertops with Crescent Edge
7” Deep Stainless Steel Kitchen Sink 16 Cubic Foot Double-Door, Frost-Free Refrigerator 30” Free-Standing Gas Range Utility Shelf Over Washer and Dryer Area In Bonus Room
Exhaust Fans In Baths Porcelain Bath Sinks 36” Tall Master Bath Lavy 1 Piece Fiberglass Tub/Shower Combinations In Baths Water Saver Commodes
Exhaust Fans In Baths Porcelain Bath Sinks 36” Tall Master Bath Lavy
1 Piece Fiberglass Tub/Shower Combinations In Baths Water Saver Commodes
Linoleum Hard-Surface Floor Covering, Including Entryway Durable Cut Pile Carpet Vaulted Ceilings Throughout Entire Home With Knockdown Textured Finish Tape and Textured Interior Walls Throughout Home Residential Raided Panel Interior Passage Doors, Mortised With 150Lb Hinges & Lever Handles 5/8” Thick Interior Door Jambs With Profiled Door Casing Drapery Valances With Aluminum Mini Blinds Ventilated Shelving In Wardrobes and Pantries Decorator Style Electrical Receptacles and Silent Rocker Switches Dining Room Chandelier, Bedroom Ceiling Lights and Bath Vanity Lights Ceiling Fan Ready In Living Room and Master Bedroom
Linoleum Hard-Surface Floor Covering, Including Entryway Durable Cut Pile Carpet Vaulted Ceilings Throughout Entire Home With Knockdown Textured Finish Tape and Textured Interior Walls Throughout Home Residential Raided Panel Interior Passage Doors, Mortised With 150Lb Hinges & Lever Handles 5/8” Thick Interior Door Jambs With Profiled Door Casing
Drapery Valances With Aluminum Mini Blinds Ventilated Shelving In Wardrobes and Pantries Decorator Style Electrical Receptacles and Silent Rocker Switches Dining Room Chandelier, Bedroom Ceiling Lights and Bath Vanity Lights Ceiling Fan Ready In Living Room and Master Bedroom
Images of homes are solely for illustrative purposes and should not be relied upon. Images may not accurately represent the actual condition of a home as constructed, and may contain options which are not standard on all homes.