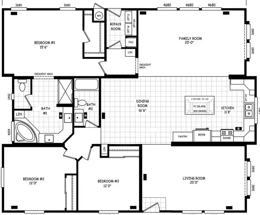
Homes | Pinnacle 40483A