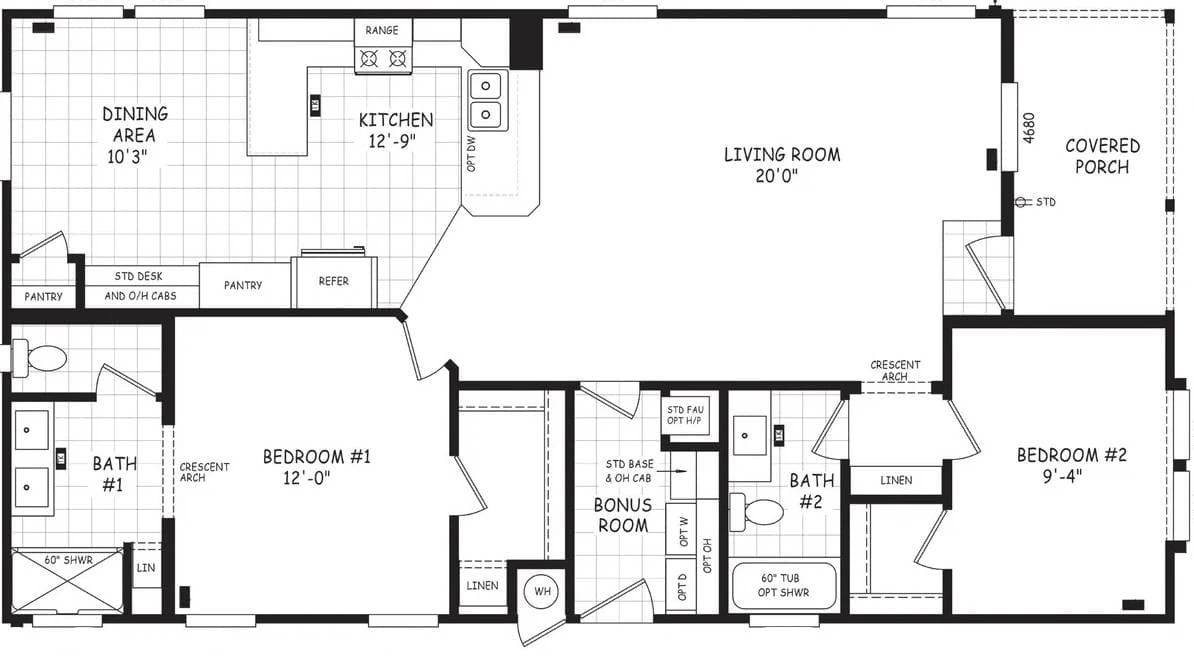
Homes | Pinnacle 28512A