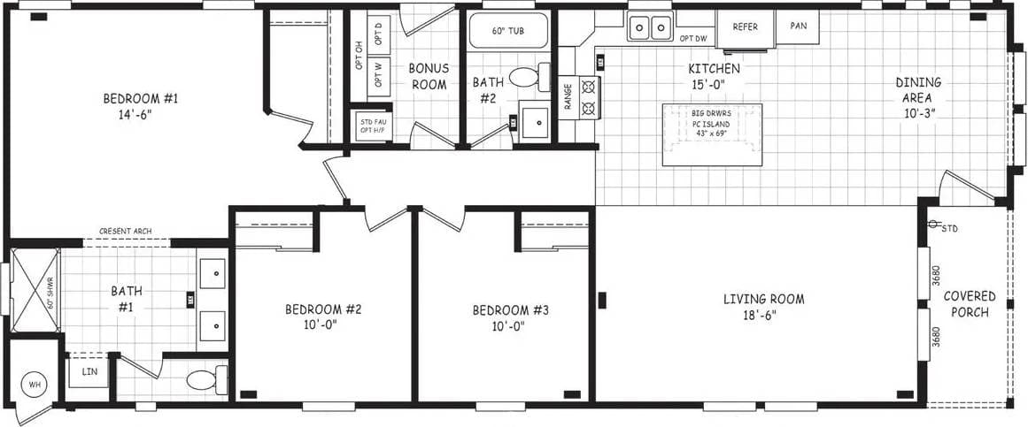
Homes | Pinnacle 24583A