Homes | Noble 3272H12
Property map Enter your address or APN to check if this home fits on your property
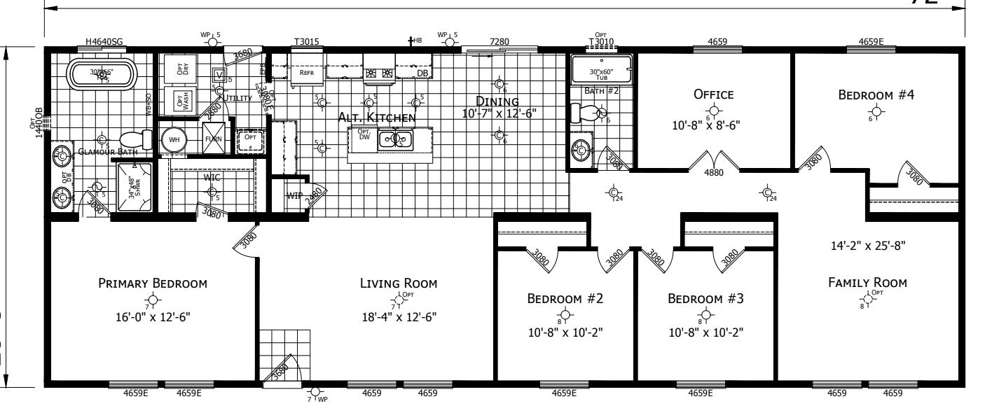
4 bedrooms
2 full bathrooms
2,184 sq. ft.
30' 4" x 72'
Construction
Detachable Hitch Recessed Frame 2 X 6 Floor Joists 16" o.c. (2x8 on 30' Wides) 19/32" T&G OSB Decking 2 X 6 Exterior Walls, 16" o.c. 2 X 4 Interior Walls, 24" o.c. 8'6" Sidewall Height w/ Flat Ceiling In Line Heat Duct Crossover 30# Roof Load Nominal 3:12 Roof Pitch Double 2 x 4 Marriage Wall Construction Concealed Ridgebeam R-40 Ceiling Insulation R-33 Floor Insulation R-21 Wall Insulation 8:12 Standard Dormer Front - 12" Eaves (Nominal) Trove Homes
Affordable homes at your fingertips.
Get started with Trove Homes
Find, design, and order your next home in a few clicks.
Sign up
4 bedrooms
2 full bathrooms
2,184 sq. ft.
30' 4" x 72'
Rear - 12" Eaves (Nominal)
Energy Star®
Detachable Hitch Recessed Frame 2 X 6 Floor Joists 16" o.c. (2x8 on 30' Wides) 19/32" T&G OSB Decking 2 X 6 Exterior Walls, 16" o.c. 2 X 4 Interior Walls, 24" o.c. 8'6" Sidewall Height w/ Flat Ceiling In Line Heat Duct Crossover 30# Roof Load Nominal 3:12 Roof Pitch
Double 2 x 4 Marriage Wall Construction Concealed Ridgebeam R-40 Ceiling Insulation R-33 Floor Insulation R-21 Wall Insulation 8:12 Standard Dormer Front - 12" Eaves (Nominal) Rear - 12" Eaves (Nominal) Energy Star® Exterior
Architectural Shingles Vertical Siding Nominal 6” Exterior Window Trim 6" Bottom Trim (Shipped Loose) Non - Lap Sided Areas 8" Eave Fascia (Nominal) Wood Soffit & Facia Front Door - 36" Mission Door w/ Deadbolt Rear Door - 36" 9-Lite w/ Deadbolt Vinyl Low-E Insulated Windows (Non-Grid) Full End Wall Close-up Black Porch Light - Front & Rear
Architectural Shingles Vertical Siding Nominal 6” Exterior Window Trim 6" Bottom Trim (Shipped Loose) Non - Lap Sided Areas 8" Eave Fascia (Nominal) Wood Soffit & Facia
Front Door - 36" Mission Door w/ Deadbolt Rear Door - 36" 9-Lite w/ Deadbolt Vinyl Low-E Insulated Windows (Non-Grid) Full End Wall Close-up Black Porch Light - Front & Rear Interior
Toe Kick Floor Registers Installed Main Water Shut Off Valve Water Shut Off Valves Throughout Skip Troweled Ceiling Finish Full Tape & Texture Walls w/ Rounded Corners 1/2" Window Jamb & Wood Sill EGGSHELL Interior Paint (Walls & Ceiling) 16" Wood Closet Shelving 2-Panel White Interior Passage Doors 356 Door Moulding 356 Window Moulding 356 Base Moulding Throughout Vinyl Flooring in Wet Areas Vinyl Flooring in Entryway 25 Oz. Carpet w/ Stain Resistance (FHA Approved) 3/8" 5# Rebond Pad 2" Faux Wood Mini Blinds Throughout Return Air Grills In Bedrooms Entertainment Center w/ 48” Linear LED Fireplace 4" LED Can Light at Entry 4046 Crown Moulding Throughout
Toe Kick Floor Registers Installed Main Water Shut Off Valve Water Shut Off Valves Throughout Skip Troweled Ceiling Finish Full Tape & Texture Walls w/ Rounded Corners 1/2" Window Jamb & Wood Sill EGGSHELL Interior Paint (Walls & Ceiling) 16" Wood Closet Shelving 2-Panel White Interior Passage Doors 356 Door Moulding 356 Window Moulding
356 Base Moulding Throughout Vinyl Flooring in Wet Areas Vinyl Flooring in Entryway 25 Oz. Carpet w/ Stain Resistance (FHA Approved) 3/8" 5# Rebond Pad 2" Faux Wood Mini Blinds Throughout Return Air Grills In Bedrooms Entertainment Center w/ 48” Linear LED Fireplace 4" LED Can Light at Entry 4046 Crown Moulding Throughout Kitchen
18 CF Refrigerator Deluxe Electric Range 30" StoneCrest Hood w/ Fan & Light Stainless Steel Built-In Microwave Stainless Steel Dishwasher Drawer Over Door in Kitchen Double Adjustable Overhead Cabinet Shelves “Thinscape” Countertop & Edging Crescent Laminate Edging Kitchen & Baths 4” Subway Tile Backsplash (1 Row) Double Bowl Stainless Steel Kitchen Sink Single-Lever Faucet w/ Sprayer Hardwood Flat Panel Cabinet System Cabinet Over Refrigerator Crown Molding over Kitchen Cabinets Full Extension (Deluxe) Drawer Guides Chandelier in Dining Room 42" Overhead Kitchen Cabinets w/ Double Shelves
18 CF Refrigerator Deluxe Electric Range 30" StoneCrest Hood w/ Fan & Light Stainless Steel Built-In Microwave Stainless Steel Dishwasher Drawer Over Door in Kitchen Double Adjustable Overhead Cabinet Shelves “Thinscape” Countertop & Edging Crescent Laminate Edging Kitchen & Baths
4” Subway Tile Backsplash (1 Row) Double Bowl Stainless Steel Kitchen Sink Single-Lever Faucet w/ Sprayer Hardwood Flat Panel Cabinet System Cabinet Over Refrigerator Crown Molding over Kitchen Cabinets Full Extension (Deluxe) Drawer Guides Chandelier in Dining Room 42" Overhead Kitchen Cabinets w/ Double Shelves Bathroom
1-Piece 60" Fiberglass Tub/Shower Hall Bath Satin Nickel Towel & Tissue Holders 36" Lavy Height Elongated Toilets Bath Vent Fans w/ Lights Vanity Mirrors w/ Wrapped Stile Frame-Hall Bath Single-Lever Faucets (Euro Style in Master Bath) China Sink In Hall Bath and Rectangular Sinks in Master Bath 4" LED Can Light Above Bath Sinks Satin Nickel Cosmetic 2-Light Bar in Hall Bath 2 LED Illuminated Mirrors in Master Bath Bank of Drawers in Hall Bath Furniture Lavy with 2 Drawers in Master Bath 2-24x48 Windows with Plantation Shutters in Master Bath Radiant Shower with Glass Enclosure & Shower Tower Pencil Pulls on Master Bath Cabinets Wardrobe with Cubbies and Hooks Subway Tile Backsplashes
1-Piece 60" Fiberglass Tub/Shower Hall Bath Satin Nickel Towel & Tissue Holders 36" Lavy Height Elongated Toilets Bath Vent Fans w/ Lights Vanity Mirrors w/ Wrapped Stile Frame-Hall Bath Single-Lever Faucets (Euro Style in Master Bath) China Sink In Hall Bath and Rectangular Sinks in Master Bath
4" LED Can Light Above Bath Sinks Satin Nickel Cosmetic 2-Light Bar in Hall Bath 2 LED Illuminated Mirrors in Master Bath Bank of Drawers in Hall Bath Furniture Lavy with 2 Drawers in Master Bath 2-24x48 Windows with Plantation Shutters in Master Bath Radiant Shower with Glass Enclosure & Shower Tower Pencil Pulls on Master Bath Cabinets Wardrobe with Cubbies and Hooks Subway Tile Backsplashes Mechanical
Programmable Thermostat 4" LED Can Lights in Kitchen- Per Print 4" LED Can Lights (Except Beds & Den) Satin Nickel Ceiling Lights in Beds & Den 200 AMP Panel Box Prep for Washer/Dryer - ELECTRIC Cabinet Over Washer / Dryer Toggle Light Switches Furnace - ELECTRIC Water Heater - 50 Gallon ELECTRIC Exterior GFI Receptacle Switch to Receptacle in Living Room Prep for Paddle Fan in Living Room
Programmable Thermostat 4" LED Can Lights in Kitchen- Per Print 4" LED Can Lights (Except Beds & Den) Satin Nickel Ceiling Lights in Beds & Den 200 AMP Panel Box Prep for Washer/Dryer - ELECTRIC Cabinet Over Washer / Dryer
Toggle Light Switches Furnace - ELECTRIC Water Heater - 50 Gallon ELECTRIC Exterior GFI Receptacle Switch to Receptacle in Living Room Prep for Paddle Fan in Living Room Dealer License #: DL1609773
Detachable Hitch Recessed Frame 2 X 6 Floor Joists 16" o.c. (2x8 on 30' Wides) 19/32" T&G OSB Decking 2 X 6 Exterior Walls, 16" o.c. 2 X 4 Interior Walls, 24" o.c. 8'6" Sidewall Height w/ Flat Ceiling In Line Heat Duct Crossover 30# Roof Load Nominal 3:12 Roof Pitch Double 2 x 4 Marriage Wall Construction Concealed Ridgebeam R-40 Ceiling Insulation R-33 Floor Insulation R-21 Wall Insulation 8:12 Standard Dormer Front - 12" Eaves (Nominal) Rear - 12" Eaves (Nominal) Energy Star® Architectural Shingles Vertical Siding Nominal 6” Exterior Window Trim 6" Bottom Trim (Shipped Loose) Non - Lap Sided Areas 8" Eave Fascia (Nominal)
Wood Soffit & Facia
Front Door - 36" Mission Door w/ Deadbolt
Rear Door - 36" 9-Lite w/ Deadbolt
Vinyl Low-E Insulated Windows (Non-Grid)
Full End Wall Close-up
Black Porch Light - Front & Rear
Detachable Hitch Recessed Frame 2 X 6 Floor Joists 16" o.c. (2x8 on 30' Wides) 19/32" T&G OSB Decking 2 X 6 Exterior Walls, 16" o.c. 2 X 4 Interior Walls, 24" o.c. 8'6" Sidewall Height w/ Flat Ceiling In Line Heat Duct Crossover 30# Roof Load Nominal 3:12 Roof Pitch Double 2 x 4 Marriage Wall Construction Concealed Ridgebeam R-40 Ceiling Insulation R-33 Floor Insulation R-21 Wall Insulation
8:12 Standard Dormer Front - 12" Eaves (Nominal) Rear - 12" Eaves (Nominal) Energy Star® Architectural Shingles Vertical Siding Nominal 6” Exterior Window Trim 6" Bottom Trim (Shipped Loose) Non - Lap Sided Areas 8" Eave Fascia (Nominal) Wood Soffit & Facia Front Door - 36" Mission Door w/ Deadbolt Rear Door - 36" 9-Lite w/ Deadbolt Vinyl Low-E Insulated Windows (Non-Grid) Full End Wall Close-up Black Porch Light - Front & Rear
Images of homes are solely for illustrative purposes and should not be relied upon. Images may not accurately represent the actual condition of a home as constructed, and may contain options which are not standard on all homes.