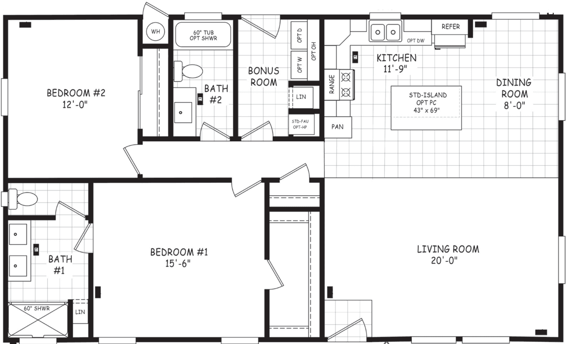
Homes | Edge 28482A