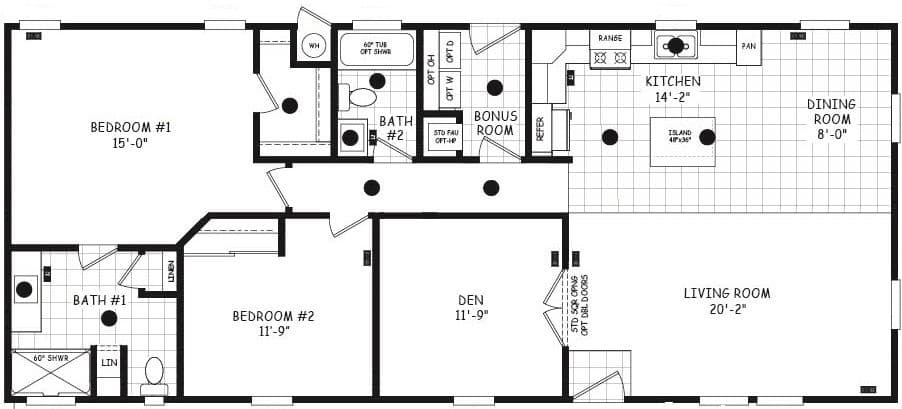
Homes | Edge 24562A