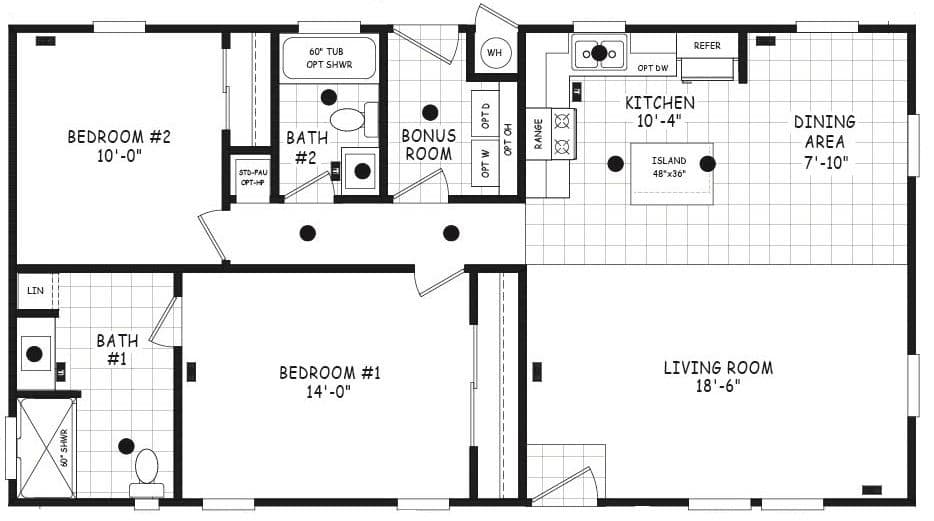
Homes | Edge 20522A