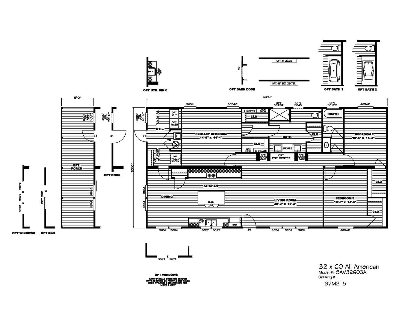
Homes | All American