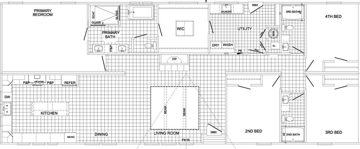
Homes | The Huxton II