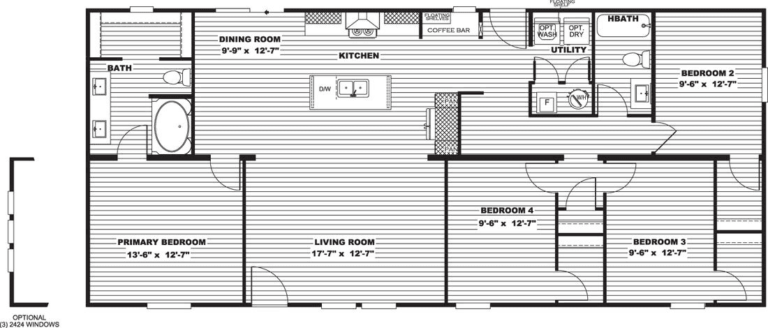
Homes | Expedition