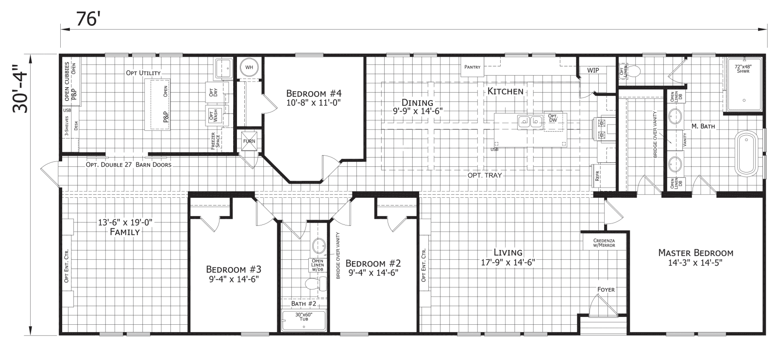
Homes | Titan Extreme 3276F