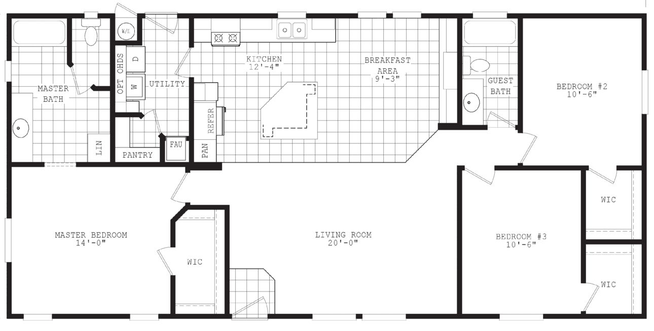
Homes | Sierra Value 28563B