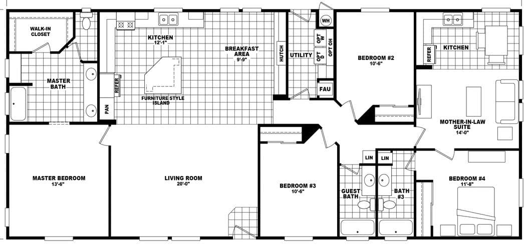
Homes | Mountain Ridge 32704D