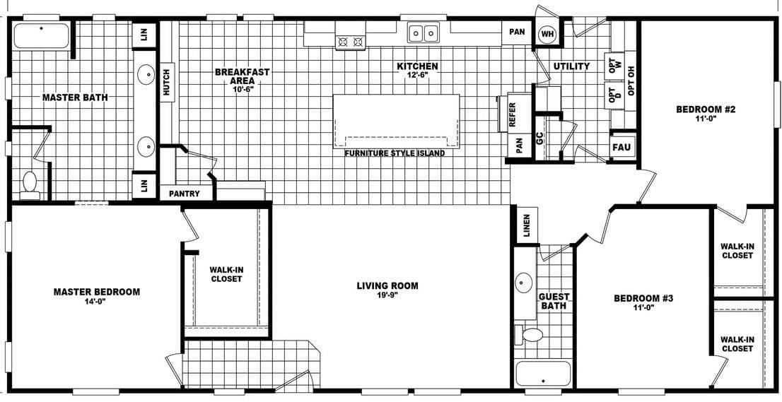
Homes | Mountain Ridge 32643A