Homes | Liberty 24442A
Property map Enter your address or APN to check if this home fits on your property
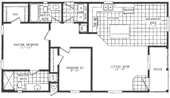
2 bedrooms
2 full bathrooms
1,041 sq. ft.
23' 8" x 44'
Liberty standard features
Interior
8’ interior and exterior wall heights with flat ceiling Tape and Textured Drywall Throughout White Interior 6 Panel Passage Doors with Painted Jambs and Casings Hollow Core 6 Panel Wardrobe Doors Linoleum in Kitchen, Utility Room, Baths and Entryway (Per Plan) Silent Wall Switches Designer Light Fixtures Wired and Braced for Ceiling Fans in Living Room & Master Bedroom White Wood Window Cornice With 2” Blinds Square edge countertops Laminate backsplash Trove Homes
Affordable homes at your fingertips.
Get started with Trove Homes
Find, design, and order your next home in a few clicks.
Sign up
2 bedrooms
2 full bathrooms
1,041 sq. ft.
23' 8" x 44'
White Interior 6 Panel Passage Doors with Painted Jambs and Casings
Hollow Core 6 Panel Wardrobe Doors
Linoleum in Kitchen, Utility Room, Baths and Entryway (Per Plan)
Silent Wall Switches
Designer Light Fixtures Wired and Braced for Ceiling Fans in Living Room & Master Bedroom White Wood Window Cornice With 2” Blinds Square edge countertops Laminate backsplash Exterior
Distinctive Elevations Durable Painted Siding Fiberglass Shingled Roof 6" Sidewall Roof Eaves and 12" End Wall Overhangs Porch Lights at All Exterior Doors Residential In Swing Front and Rear Doors with Deadbolt Oversized Vinyl Dual Glazed Windows Architectural shingles
Distinctive Elevations Durable Painted Siding Fiberglass Shingled Roof 6" Sidewall Roof Eaves and 12" End Wall Overhangs
Porch Lights at All Exterior Doors Residential In Swing Front and Rear Doors with Deadbolt Oversized Vinyl Dual Glazed Windows Architectural shingles Kitchen
Custom Cabinets with Solid Wood Doors Nationally Serviced Whirlpool Appliances 30" Free Standing Gas Range Double Door Frost-Free Refrigerator Laminate Kitchen Countertops with Ceramic Tile Backsplash Single Lever Kitchen Faucet with Spray Wired and Plumbed for Washer & Dryer Utility Overhead Shelf over Washer & Dryer Area Stainless steel appliance package One bank of drawers in kitchen, no drawers over doors
Custom Cabinets with Solid Wood Doors Nationally Serviced Whirlpool Appliances 30" Free Standing Gas Range Double Door Frost-Free Refrigerator Laminate Kitchen Countertops with Ceramic Tile Backsplash
Single Lever Kitchen Faucet with Spray Wired and Plumbed for Washer & Dryer Utility Overhead Shelf over Washer & Dryer Area Stainless steel appliance package One bank of drawers in kitchen, no drawers over doors Bathroom
Water-Saver Toilets Single Lever or Dual Handle Lavatory Faucets Laminate Vanity Countertops with Ceramic Tile Backsplash Towel Bars and Tissue Holders Flat edge mirrors in bathrooms Fiberglass shower stall with glass enclosure in master bath No vanity wall light in bathrooms, recessed can light only No recessed medicine cabinets
Water-Saver Toilets Single Lever or Dual Handle Lavatory Faucets Laminate Vanity Countertops with Ceramic Tile Backsplash Towel Bars and Tissue Holders
Flat edge mirrors in bathrooms Fiberglass shower stall with glass enclosure in master bath No vanity wall light in bathrooms, recessed can light only No recessed medicine cabinets Construction
2 x 4 Exterior Walls 7'6" Sidewall Height Nominal 4/12 Roof Pitch with 30 lb. Construction Climate Zone II Insulation with Floors R-22, Walls R-11, and Roof R-25 Minimum 100 Amp Interior Electrical Service Panel 30 Gallon Electric Water Heater Shut Off Valves on all Water Fixtures Down Flow Gas Furnace with Floor Ducts Inside Fully Sealed Basement Cavity No wood window valances 24” on center interior wall studs
2 x 4 Exterior Walls 7'6" Sidewall Height Nominal 4/12 Roof Pitch with 30 lb. Construction Climate Zone II Insulation with Floors R-22, Walls R-11, and Roof R-25 Minimum 100 Amp Interior Electrical Service Panel
30 Gallon Electric Water Heater Shut Off Valves on all Water Fixtures Down Flow Gas Furnace with Floor Ducts Inside Fully Sealed Basement Cavity No wood window valances 24” on center interior wall studs Other
9' High Ceilings with 42" Overhead Cabinets, 80" Tall Windows, and 8' Tall Front Door Larger Baseboard Moldings Ceiling Cove Molding Rounded Drywall Corners Solid Surface Countertops Full Height Ceramic Tile Backsplash in Kitchen Soft Close Cabinet Hardware for Cabinet Doors and Drawers Upgrade Kitchen Appliances Upgrade Vinyl Floor Tile Replacing Linoleum Skylights and Solar Tubes 2 x 6 Exterior Walls with R-19 Insulation Exterior Roof Dormers 200 Amp Total Electric Overhead Ductwork with Ceiling Registers Replacing Floor Ducts and Floor Registers
9' High Ceilings with 42" Overhead Cabinets, 80" Tall Windows, and 8' Tall Front Door Larger Baseboard Moldings Ceiling Cove Molding Rounded Drywall Corners Solid Surface Countertops Full Height Ceramic Tile Backsplash in Kitchen Soft Close Cabinet Hardware for Cabinet Doors and Drawers
Upgrade Kitchen Appliances Upgrade Vinyl Floor Tile Replacing Linoleum Skylights and Solar Tubes 2 x 6 Exterior Walls with R-19 Insulation Exterior Roof Dormers 200 Amp Total Electric Overhead Ductwork with Ceiling Registers Replacing Floor Ducts and Floor Registers Dealer License #: DL1609773
Distinctive Elevations Durable Painted Siding Fiberglass Shingled Roof 6" Sidewall Roof Eaves and 12" End Wall Overhangs Porch Lights at All Exterior Doors Residential In Swing Front and Rear Doors with Deadbolt Oversized Vinyl Dual Glazed Windows Architectural shingles 2 x 4 Exterior Walls 7'6" Sidewall Height Nominal 4/12 Roof Pitch with 30 lb. Construction Climate Zone II Insulation with Floors R-22, Walls R-11, and Roof R-25 Minimum 100 Amp Interior Electrical Service Panel 30 Gallon Electric Water Heater Shut Off Valves on all Water Fixtures Down Flow Gas Furnace with Floor Ducts Inside Fully Sealed Basement Cavity No wood window valances 24” on center interior wall studs
Fiberglass Shingled Roof
6" Sidewall Roof Eaves and 12" End Wall Overhangs
Porch Lights at All Exterior Doors
Residential In Swing Front and Rear Doors with Deadbolt
Oversized Vinyl Dual Glazed Windows
Architectural shingles
2 x 4 Exterior Walls
7'6" Sidewall Height Nominal 4/12 Roof Pitch with 30 lb. Construction Climate Zone II Insulation with Floors R-22, Walls R-11, and Roof R-25 Minimum 100 Amp Interior Electrical Service Panel 30 Gallon Electric Water Heater Shut Off Valves on all Water Fixtures Down Flow Gas Furnace with Floor Ducts Inside Fully Sealed Basement Cavity No wood window valances 24” on center interior wall studs
Images of homes are solely for illustrative purposes and should not be relied upon. Images may not accurately represent the actual condition of a home as constructed, and may contain options which are not standard on all homes.