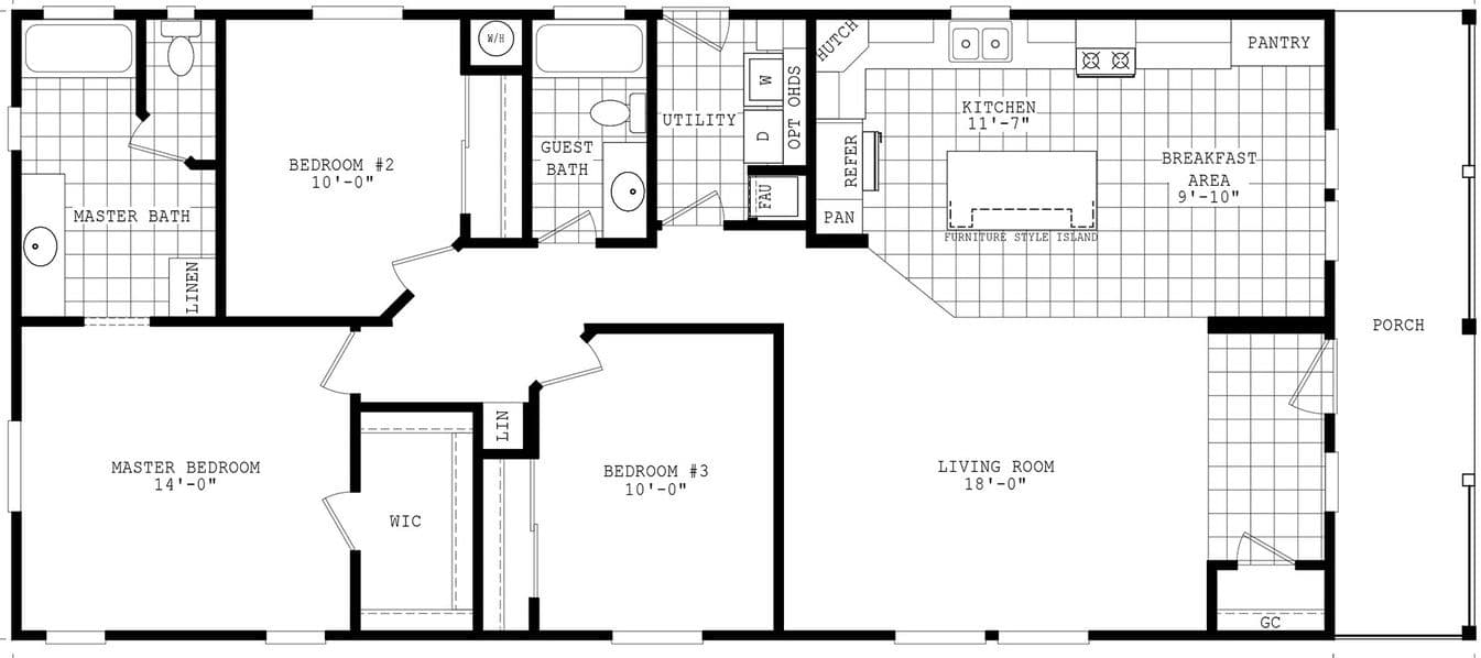
Homes | Durango Porch Homes 28623A