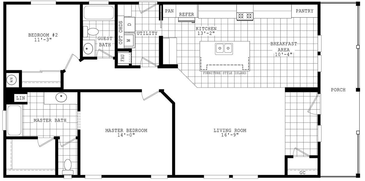
Homes | Durango Porch Homes 28542A