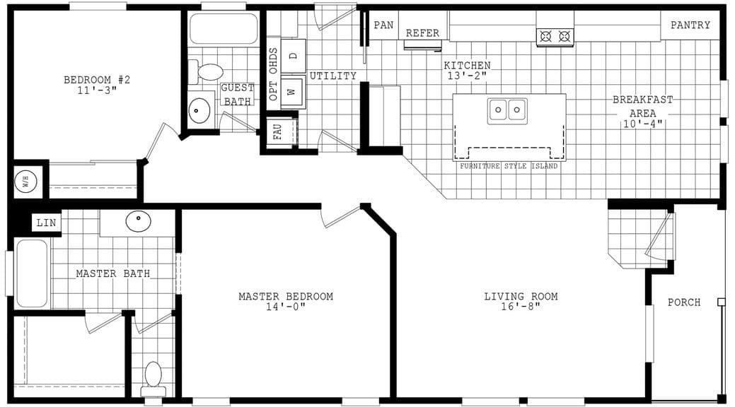
Homes | Durango Porch Homes 28482A