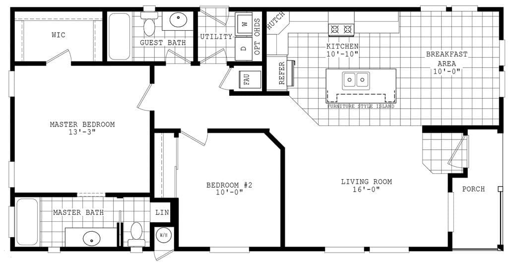
Homes | Durango Porch Homes 24482A