Homes | Sparta Cape
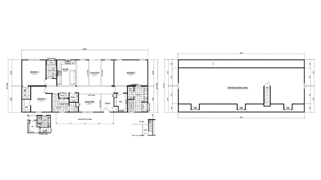
3 bedrooms
2 full bathrooms
1,848 sq. ft.
28' x 66'
Nationwide Homestead standard features
Construction
Exterior Walls: 2”x 6” Wall Studs, 16” o.c. Ceiling Height: 8’ Interior Walls: 2”x 4” Wall Studs, 16” o.c. Double Top Plates on Interior and Exterior Walls Mating Walls: 2”x 3” or 2”x 4” (Per Plans) Floor Joist: 2x10 @ 16” o.c. Floor Decking: ¾” Tongue-and-Groove OSB Exterior Wall Sheathing: 7/16” OSB Roof Pitch: 7/12, 9/12 & 12/12 Pitch @ 24” o.c. (Per Plans) Roof Sheathing: 7/16” OSB with Ply-Clips Overhangs: 12”
Exterior Walls: 2”x 6” Wall Studs, 16” o.c. Ceiling Height: 8’ Interior Walls: 2”x 4” Wall Studs, 16” o.c. Trove Homes
Affordable homes at your fingertips.
Get started with Trove Homes
Find, design, and order your next home in a few clicks.
Sign up Property map Enter your address or APN to check if this home fits on your property
Exterior Walls: 2”x 6” Wall Studs, 16” o.c. Ceiling Height: 8’ Interior Walls: 2”x 4” Wall Studs, 16” o.c. Double Top Plates on Interior and Exterior Walls Mating Walls: 2”x 3” or 2”x 4” (Per Plans) Floor Joist: 2x10 @ 16” o.c. Floor Decking: ¾” Tongue-and-Groove OSB Exterior Wall Sheathing: 7/16” OSB Roof Pitch: 7/12, 9/12 & 12/12 Pitch @ 24” o.c. (Per Plans) Roof Sheathing: 7/16” OSB with Ply-Clips Overhangs: 12” Siding: Double 5 Straight/Traditional Lap Vinyl Siding w/White Corners White Prefinished Fascia/Drip Edge; White Vinyl Soffit Roof Shingles: Architectural Over Synthetic Roof Underlayment Ridge Ventilation System Titan House Wrap Porches: 6” White Vinyl Post Wrap, Rails and Pickets (Per Plans) Windows: KINRO Single Hung Vinyl w/Screens, DP50, Low-E, 4/1 Grid Pattern
3 bedrooms
2 full bathrooms
1,848 sq. ft.
28' x 66'
Double Top Plates on Interior and Exterior Walls
Mating Walls: 2”x 3” or 2”x 4” (Per Plans)
Floor Joist: 2x10 @ 16” o.c.
Floor Decking: ¾” Tongue-and-Groove OSB Exterior Wall Sheathing: 7/16” OSB Roof Pitch: 7/12, 9/12 & 12/12 Pitch @ 24” o.c. (Per Plans) Roof Sheathing: 7/16” OSB with Ply-Clips Overhangs: 12” Exterior
Siding: Double 5 Straight/Traditional Lap Vinyl Siding w/White Corners White Prefinished Fascia/Drip Edge; White Vinyl Soffit Roof Shingles: Architectural Over Synthetic Roof Underlayment Ridge Ventilation System Titan House Wrap Porches: 6” White Vinyl Post Wrap, Rails and Pickets (Per Plans) Windows: KINRO Single Hung Vinyl w/Screens, DP50, Low-E, 4/1 Grid Pattern 2” Window Blinds: OPTIONAL Exterior Window Treatment @ Front Elevation: 3” White Vinyl Trim All Shutters: OPTIONAL with 3” White Vinyl Trim (Included) Front Door: 3 to Choose From (See Décor Selector Guide) Rear/Utility Door: ½ Glass 4-Lite S262 Sidelights: OPTIONAL Kwikset Smart Key Knob with Deadbolt
Siding: Double 5 Straight/Traditional Lap Vinyl Siding w/White Corners White Prefinished Fascia/Drip Edge; White Vinyl Soffit Roof Shingles: Architectural Over Synthetic Roof Underlayment Ridge Ventilation System Titan House Wrap Porches: 6” White Vinyl Post Wrap, Rails and Pickets (Per Plans) Windows: KINRO Single Hung Vinyl w/Screens, DP50,
Low-E, 4/1 Grid Pattern 2” Window Blinds: OPTIONAL Exterior Window Treatment @ Front Elevation: 3” White Vinyl Trim All Shutters: OPTIONAL with 3” White Vinyl Trim (Included) Front Door: 3 to Choose From (See Décor Selector Guide) Rear/Utility Door: ½ Glass 4-Lite S262 Sidelights: OPTIONAL Kwikset Smart Key Knob with Deadbolt Other
Bath Fixtures: White Toilets: Elongated, Vitreous China Tubs and Showers: Fiberglass Glass Bypass Brushed Nickel Shower Door-48”/60” Showers (Per Plans) 4x6 or 4x8 Ceramic Shower @ Bath 1 (Per Plans): Includes Fiberglass Pan, Hand-Held Wand, Rainfall Shower Head and LED Light Pedestal Tub @ Bath 1 (Per Plans) Bath Faucets: Dual Handle Brushed Nickel Finish Bath Sink: 21” x 18” Rectangle Plumb for Ice Maker (Recessed Box In Wall) Plumbing Supply System: PEX Drain, Waste & Vent System: PVC Water Heater: Electric 50-Gallon High Efficiency Kitchen Sink: 8” Deep Stainless Steel, Double Bowl with Gooseneck Brushed Nickel Faucet Whole House Shut Off Valve One Exterior Hose Bib
Bath Fixtures: White Toilets: Elongated, Vitreous China Tubs and Showers: Fiberglass Glass Bypass Brushed Nickel Shower Door-48”/60” Showers (Per Plans) 4x6 or 4x8 Ceramic Shower @ Bath 1 (Per Plans): Includes Fiberglass Pan, Hand-Held Wand, Rainfall Shower Head and LED Light Pedestal Tub @ Bath 1 (Per Plans) Bath Faucets: Dual Handle Brushed Nickel Finish
Bath Sink: 21” x 18” Rectangle Plumb for Ice Maker (Recessed Box In Wall) Plumbing Supply System: PEX Drain, Waste & Vent System: PVC Water Heater: Electric 50-Gallon High Efficiency Kitchen Sink: 8” Deep Stainless Steel, Double Bowl with Gooseneck Brushed Nickel Faucet Whole House Shut Off Valve One Exterior Hose Bib Mechanical
Floor Insulation: OPTIONAL Exterior Walls: R-19 Insulation Ceiling: R-38 Insulation (R-30 Between Knee Walls and Under Floor Decking of Capes and Triple Wide Models) Return Air Grille with Plenum & Pull Wire for Thermostat Floor Registers: OPTIONAL
Floor Insulation: OPTIONAL Exterior Walls: R-19 Insulation Ceiling: R-38 Insulation (R-30 Between Knee Walls and Under Floor Decking of Capes and Triple Wide Models)
Return Air Grille with Plenum & Pull Wire for Thermostat Floor Registers: OPTIONAL Interior
Walls: 1/2” Drywall Primed, Smooth Finish, Painted Gray Ceilings: 1/2” High Strength Drywall, Smooth Finish, Painted White Base Molding: 3 ¼” Speed/Finished Coat (Pine) Door & Window Casing: 2 ¼” Colonial/Primed & Finished (Pine) 4-1/4” Crown Mold T/O (Except Closets) (Pine) Stairs: Carpet Grade w/Pine Treads-Sloped Wall w/Cap, Prefinished Handrail, White Skirt Boards-Pickets-Newel Posts (Per Plans) Carpet: 25 oz FHA with Deluxe 6# Padding (Shipped Loose) For Bedrooms, Bedroom Closets and Den Resolve Vinyl Plank Flooring (LVP): Baths and Utility Resolve Vinyl Plank Flooring (LVP): Living Room, Dining Room, Kitchen, Hall and Foyer (Shipped Loose) Interior Doors: Two Panel Hardboard Lever Brushed Nickel Interior Locksets Cabinets: Forevermark Full-Overlay Shaker, 36” Wall with Crown, Soft-Close Doors & Drawers, Brushed Nickel Knobs & Matching Toe Kicks, Lazy Susan, Pot & Pan Drawer Countertops: Laminate with Crescent Edge T/O Backsplash: Kitchen–Ceramic (See Décor Selector Guide for Standards) Backsplash: Baths-4” Matching Laminate (Ceramic Optional) Vanity Mirrors: White Framed Shower Rods and Bath Accessories by Purchaser Closet Shelving: Ventilated Epoxy Coated - Shelving Layout per Plans, Shoe Cubby in BR1 Closet, Storage/Shelving over Washer/Dryer Bench/Cubby in Utility Room or Foyer – If shown on Plans
Walls: 1/2” Drywall Primed, Smooth Finish, Painted Gray Ceilings: 1/2” High Strength Drywall, Smooth Finish, Painted White Base Molding: 3 ¼” Speed/Finished Coat (Pine) Door & Window Casing: 2 ¼” Colonial/Primed & Finished (Pine) 4-1/4” Crown Mold T/O (Except Closets) (Pine) Stairs: Carpet Grade w/Pine Treads-Sloped Wall w/Cap, Prefinished Handrail, White Skirt Boards-Pickets-Newel Posts (Per Plans) Carpet: 25 oz FHA with Deluxe 6# Padding (Shipped Loose) For Bedrooms, Bedroom Closets and Den Resolve Vinyl Plank Flooring (LVP): Baths and Utility Resolve Vinyl Plank Flooring (LVP): Living Room, Dining Room, Kitchen, Hall and Foyer (Shipped Loose) Interior Doors: Two Panel Hardboard
Lever Brushed Nickel Interior Locksets Cabinets: Forevermark Full-Overlay Shaker, 36” Wall with Crown, Soft-Close Doors & Drawers, Brushed Nickel Knobs & Matching Toe Kicks, Lazy Susan, Pot & Pan Drawer Countertops: Laminate with Crescent Edge T/O Backsplash: Kitchen–Ceramic (See Décor Selector Guide for Standards) Backsplash: Baths-4” Matching Laminate (Ceramic Optional) Mechanical
Main Electric Panel: 200 AMP Smoke Detectors: Per Plan Interior Lighting: BN Fixtures, Wired, Braced & Prepped for Ceiling Fan In Living Room & Bedrooms with 2 Switches (Overhead Light Included) 2 Pendant Lights over Island or Peninsula Bar (Per Plans) LED Recessed Lights: Kitchen, Living Room & Over Shower in Bath #1 Wall Mounted Vanity Lighting Electrical Gage Boxes: Nailed to Stud T/O, Sealed on Exterior Walls Exhaust Fans: Vented To Exterior General Wiring: Nonmetallic, 12 Gauge General Lighting Minimum ARC Fault Breakers Included 100 CFM Exhaust Fan @ Bath 1 Interior Receptacle w/Night Light @ Hallways Greater Than 6’ Long Two Exterior Receptacles
Main Electric Panel: 200 AMP Smoke Detectors: Per Plan Interior Lighting: BN Fixtures, Wired, Braced & Prepped for Ceiling Fan In Living Room & Bedrooms with 2 Switches (Overhead Light Included) 2 Pendant Lights over Island or Peninsula Bar (Per Plans) LED Recessed Lights: Kitchen, Living Room & Over Shower in Bath #1 Wall Mounted Vanity Lighting Electrical Gage Boxes: Nailed to Stud T/O, Sealed on Exterior Walls
Exhaust Fans: Vented To Exterior General Wiring: Nonmetallic, 12 Gauge General Lighting Minimum ARC Fault Breakers Included 100 CFM Exhaust Fan @ Bath 1 Interior Receptacle w/Night Light @ Hallways Greater Than 6’ Long Two Exterior Receptacles Kitchen
Dishwasher Ventless Designer Canopy Range Hood (2 to Choose From) Includes Dryer Vent Box Recessed in Wall Dryer Ducted by Purchaser All Other Appliances: OPTIONAL
Dishwasher Ventless Designer Canopy Range Hood (2 to Choose From) Includes Dryer Vent Box Recessed in Wall
Dryer Ducted by Purchaser All Other Appliances: OPTIONAL Construction
20# Roof Load 90 MPH Construction/115 Vult Engineering/Submittal Fees (Up to $715) Stamped Prints for Permitting Pro-Set Included 2/10 Warranty NTA Labels
20# Roof Load 90 MPH Construction/115 Vult Engineering/Submittal Fees (Up to $715) Stamped Prints for Permitting
Pro-Set Included 2/10 Warranty NTA Labels Dealer License #: DL1609773
Vanity Mirrors: White Framed
Shower Rods and Bath Accessories by Purchaser
Closet Shelving: Ventilated Epoxy Coated - Shelving Layout per Plans, Shoe Cubby in BR1 Closet, Storage/Shelving over Washer/Dryer
Bench/Cubby in Utility Room or Foyer – If shown on Plans
2” Window Blinds: OPTIONAL
Exterior Window Treatment @ Front Elevation: 3” White Vinyl Trim All Shutters: OPTIONAL with 3” White Vinyl Trim (Included)
Front Door: 3 to Choose From (See Décor Selector Guide)
Rear/Utility Door: ½ Glass 4-Lite S262
Sidelights: OPTIONAL
Kwikset Smart Key Knob with Deadbolt
20# Roof Load
90 MPH Construction/115 Vult
Engineering/Submittal Fees (Up to $715)
Stamped Prints for Permitting
Pro-Set Included
2/10 Warranty
NTA Labels
Exterior Walls: 2”x 6” Wall Studs, 16” o.c. Ceiling Height: 8’ Interior Walls: 2”x 4” Wall Studs, 16” o.c. Double Top Plates on Interior and Exterior Walls Mating Walls: 2”x 3” or 2”x 4” (Per Plans) Floor Joist: 2x10 @ 16” o.c. Floor Decking: ¾” Tongue-and-Groove OSB Exterior Wall Sheathing: 7/16” OSB Roof Pitch: 7/12, 9/12 & 12/12 Pitch @ 24” o.c. (Per Plans) Roof Sheathing: 7/16” OSB with Ply-Clips Overhangs: 12” Siding: Double 5 Straight/Traditional Lap Vinyl Siding w/White Corners White Prefinished Fascia/Drip Edge; White Vinyl Soffit Roof Shingles: Architectural Over Synthetic Roof Underlayment Ridge Ventilation System Titan House Wrap
Porches: 6” White Vinyl Post Wrap, Rails and Pickets (Per Plans) Windows: KINRO Single Hung Vinyl w/Screens, DP50, Low-E, 4/1 Grid Pattern 2” Window Blinds: OPTIONAL Exterior Window Treatment @ Front Elevation: 3” White Vinyl Trim All Shutters: OPTIONAL with 3” White Vinyl Trim (Included) Front Door: 3 to Choose From (See Décor Selector Guide) Rear/Utility Door: ½ Glass 4-Lite S262 Sidelights: OPTIONAL Kwikset Smart Key Knob with Deadbolt 20# Roof Load 90 MPH Construction/115 Vult Engineering/Submittal Fees (Up to $715) Stamped Prints for Permitting Pro-Set Included 2/10 Warranty NTA Labels Dishwasher Ventless Designer Canopy Range Hood (2 to Choose From) Includes Dryer Vent Box Recessed in Wall Dryer Ducted by Purchaser All Other Appliances: OPTIONAL
Dishwasher Ventless Designer Canopy Range Hood (2 to Choose From) Includes Dryer Vent Box Recessed in Wall
Dryer Ducted by Purchaser All Other Appliances: OPTIONAL
Walls: 1/2” Drywall Primed, Smooth Finish, Painted Gray Ceilings: 1/2” High Strength Drywall, Smooth Finish, Painted White Base Molding: 3 ¼” Speed/Finished Coat (Pine) Door & Window Casing: 2 ¼” Colonial/Primed & Finished (Pine) 4-1/4” Crown Mold T/O (Except Closets) (Pine) Stairs: Carpet Grade w/Pine Treads-Sloped Wall w/Cap, Prefinished Handrail, White Skirt Boards-Pickets-Newel Posts (Per Plans) Carpet: 25 oz FHA with Deluxe 6# Padding (Shipped Loose) For Bedrooms, Bedroom Closets and Den Resolve Vinyl Plank Flooring (LVP): Baths and Utility Resolve Vinyl Plank Flooring (LVP): Living Room, Dining Room, Kitchen, Hall and Foyer (Shipped Loose) Interior Doors: Two Panel Hardboard Lever Brushed Nickel Interior Locksets Cabinets: Forevermark Full-Overlay Shaker, 36” Wall with Crown, Soft-Close Doors & Drawers, Brushed Nickel Knobs & Matching Toe Kicks, Lazy Susan, Pot & Pan Drawer Countertops: Laminate with Crescent Edge T/O Backsplash: Kitchen–Ceramic (See Décor Selector Guide for Standards) Backsplash: Baths-4” Matching Laminate (Ceramic Optional) Vanity Mirrors: White Framed Shower Rods and Bath Accessories by Purchaser Closet Shelving: Ventilated Epoxy Coated - Shelving Layout per Plans, Shoe Cubby in BR1 Closet, Storage/Shelving over Washer/Dryer Bench/Cubby in Utility Room or Foyer – If shown on Plans
Walls: 1/2” Drywall Primed, Smooth Finish, Painted Gray Ceilings: 1/2” High Strength Drywall, Smooth Finish, Painted White Base Molding: 3 ¼” Speed/Finished Coat (Pine) Door & Window Casing: 2 ¼” Colonial/Primed & Finished (Pine) 4-1/4” Crown Mold T/O (Except Closets) (Pine) Stairs: Carpet Grade w/Pine Treads-Sloped Wall w/Cap, Prefinished Handrail, White Skirt Boards-Pickets-Newel Posts (Per Plans) Carpet: 25 oz FHA with Deluxe 6# Padding (Shipped Loose) For Bedrooms, Bedroom Closets and Den Resolve Vinyl Plank Flooring (LVP): Baths and Utility Resolve Vinyl Plank Flooring (LVP): Living Room, Dining Room, Kitchen, Hall and Foyer (Shipped Loose) Interior Doors: Two Panel Hardboard
Lever Brushed Nickel Interior Locksets Cabinets: Forevermark Full-Overlay Shaker, 36” Wall with Crown, Soft-Close Doors & Drawers, Brushed Nickel Knobs & Matching Toe Kicks, Lazy Susan, Pot & Pan Drawer Countertops: Laminate with Crescent Edge T/O Backsplash: Kitchen–Ceramic (See Décor Selector Guide for Standards) Backsplash: Baths-4” Matching Laminate (Ceramic Optional)
Images of homes are solely for illustrative purposes and should not be relied upon. Images may not accurately represent the actual condition of a home as constructed, and may contain options which are not standard on all homes.
Vanity Mirrors: White Framed
Shower Rods and Bath Accessories by Purchaser
Closet Shelving: Ventilated Epoxy Coated - Shelving Layout per Plans, Shoe Cubby in BR1 Closet, Storage/Shelving over Washer/Dryer
Bench/Cubby in Utility Room or Foyer – If shown on Plans