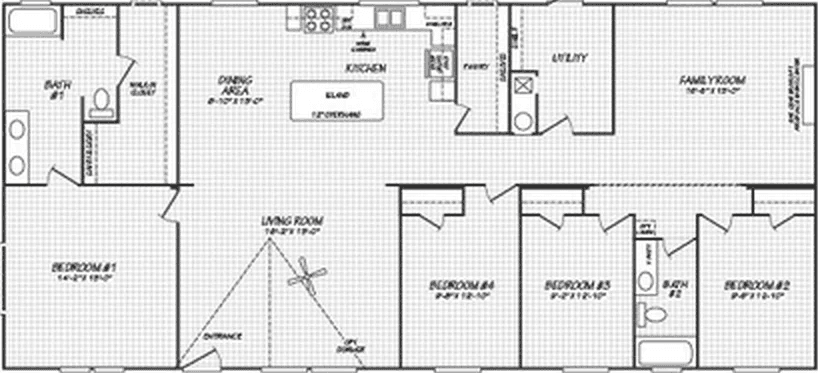
Homes | Valu Premier 32684G