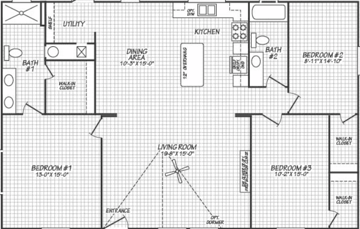
Homes | Valu Premier 32483G