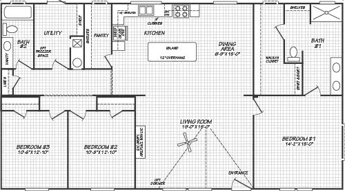
Homes | Valu Maxx Premier 32563E