Enter your address or APN to check if this home fits on your property
Enter your property street address or APN
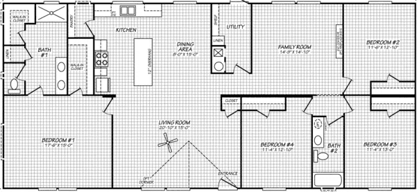
Interior

Trove Homes
Affordable homes at your fingertips.
Bathroom
Mechanical
Kitchen
Exterior
Dealer License #: DL1609773
Images of homes are solely for illustrative purposes and should not be relied upon. Images may not accurately represent the actual condition of a home as constructed, and may contain options which are not standard on all homes.