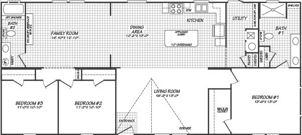
Homes | Canyon Lake Premier 28603T