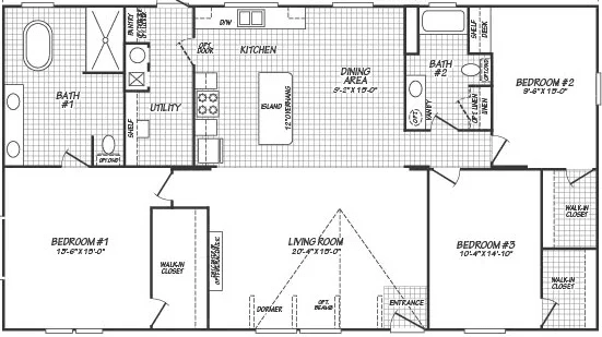
Homes | American Dream 32563D